木×コンクリート打ち放しのコンビネーション!
部屋の中央には造り付けのオープンラック付き。本やアート、オブジェ、グリーン等を飾って。何も入れないスペースがあってもおしゃれかも。カフェのようなインテリアスタイルが似合いそうですね。
そして天井も高くて、窓も大きい!
theデザイナーズな雰囲気。最寄り駅も学大と魅力的!
物件は東横線「学芸大学駅」から、西口商店街を抜けて歩いて7分。
商店街を通る道のりは帰り道にも寄り道スポットが多くて嬉しいですね。
学芸大学はいわずもがな、東横線の中でも特に住みたい!という方が多い駅です。
急行・時間帯によっては特急も停まり、東西の商店街はとっても賑わっており、個性的なお店も数多く。
住んでよし遊びに行ってよしな街。
碑文谷公園は歩いて8分、駒沢公園・世田谷公園も自転車で10分圏内。自然の近さも魅力的です。
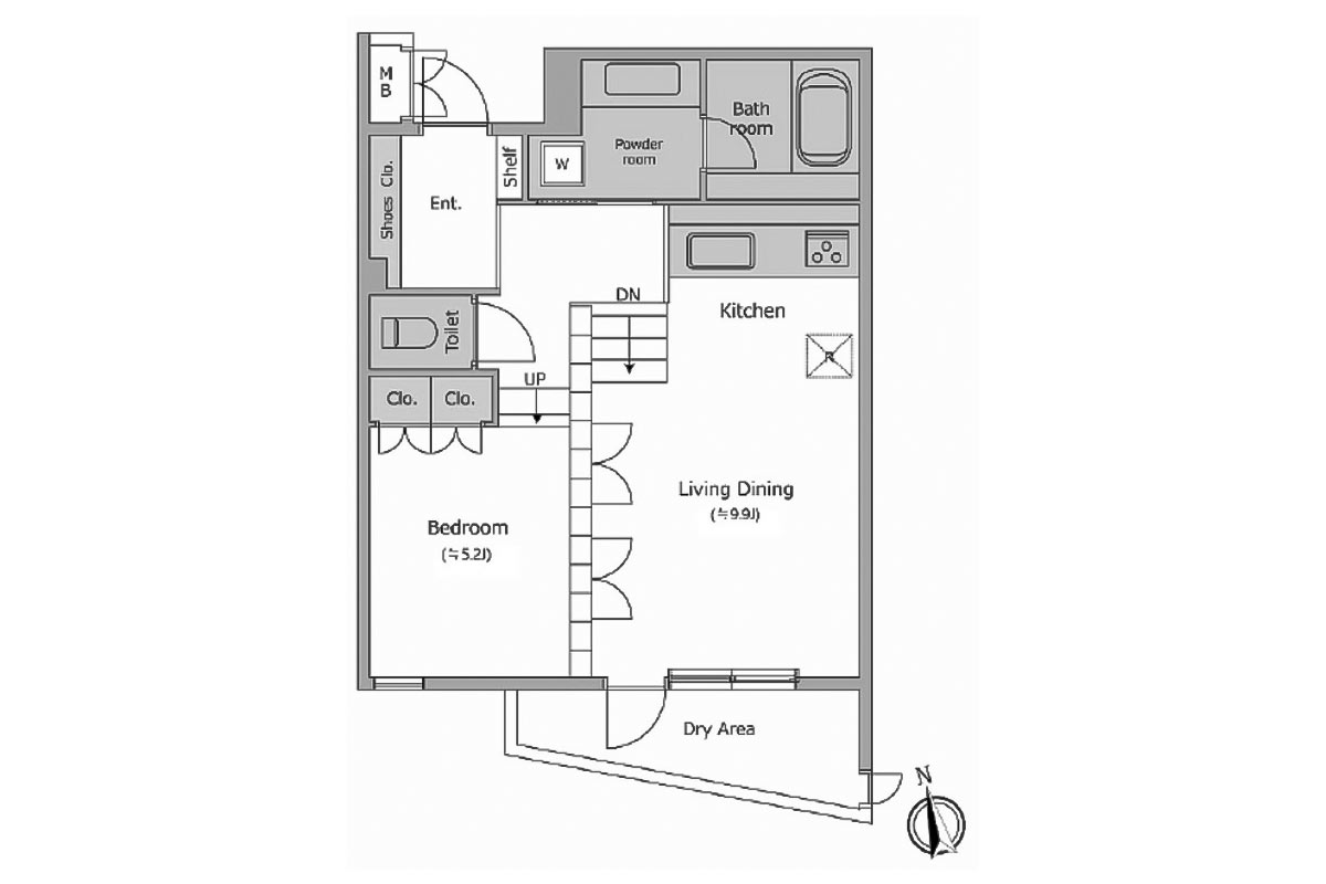
お部屋は約41.3㎡。平面図で見ると1LDK、空間としてはワンルーム。
LDKと洋室の境目はオープンラックになっており、また階段による高低差もあり、なんとも立体的な構造で面白いです。
オープンラックには本・アート・オブジェ・グリーンなどを飾って、仕切りを強くするのも良いですし、何も置かないで空間に抜けを作るのも良さそう。
スタイリッシュで落ち着いたカフェ風のインテリアが似合いそうです。
主要採光は南!写真の部屋は北向きでした。窓が多いだけでなく、窓が大きいのは嬉しいですね。
またLDKは特に天井がかなり高い印象を受けました。天井の高いお部屋をお探しの方にもおすすめです。
なお撮影時はまだ修繕中のため、キッチンは見当たらず…
情報として3口コンロ・グリル付きのようです。またスタイリッシュなステンレスキッチン!というわけではなく、使いやすい上下に収納が付いたタイプ。
料理好きの人・自炊派の方もご安心ください。
玄関収納も豊富で、計3箇所。靴以外のストック用品、可動棚なので少し大きなアウトドア用品なども入るでしょうか。
その他室内設備は追い炊き・浴室乾燥、共用部はオートロック、宅配ボックスもついています。
木×コンクリート打ち放しのコンビネーションが効いたデザイナーズ物件。
早い者勝ちです!
※エレベーター:無し
※不可:ペット/事務所/楽器
──────────────────────────
まずは、ガレージ賃貸(青山物産)と、ゆるくつながりませんか?
是非フォローしてみてください!
──────────────────────────












































































