申込あり、内見・お申込みはご相談ください
写真は同間取り、別の部屋のものです
バルコニーからの景色・吹き抜けが異なります(上階洋室:障子無し→格子の柵/写真参考)
赤瓦屋根に真っ白な壁面の外観が、南国のヴィラのような雰囲気を醸し出すマンション。まるで別荘のよう。
どの部屋もメゾネットタイプで、気持ちの良い吹き抜けとコンクリート×木の内装のお部屋。そしてウォークインクローゼットも!
駅距離はそれほど気にせず、広さや収納量を求める方にはうってつけです。
物件は南武線の武蔵新城駅から歩いて15分ほど。
もしくは田園都市線・大井町線・南武線「溝の口駅」の駅前バスロータリーから市バスに5分乗り、最寄りのバス停で降りると歩いて3分の距離。
自転車なら9分ほどです。溝の口駅前には駐輪場も多いので、自転車の活用もおすすめです◎
マンションは大きな弧を描いた形で、中央にエントランス、両サイドに駐車場が並びます。
オートロック・宅配BOX付きのエントランスを抜けると、広々としたエントランスと2つの大階段が広がりしばらく見渡してしまいます。
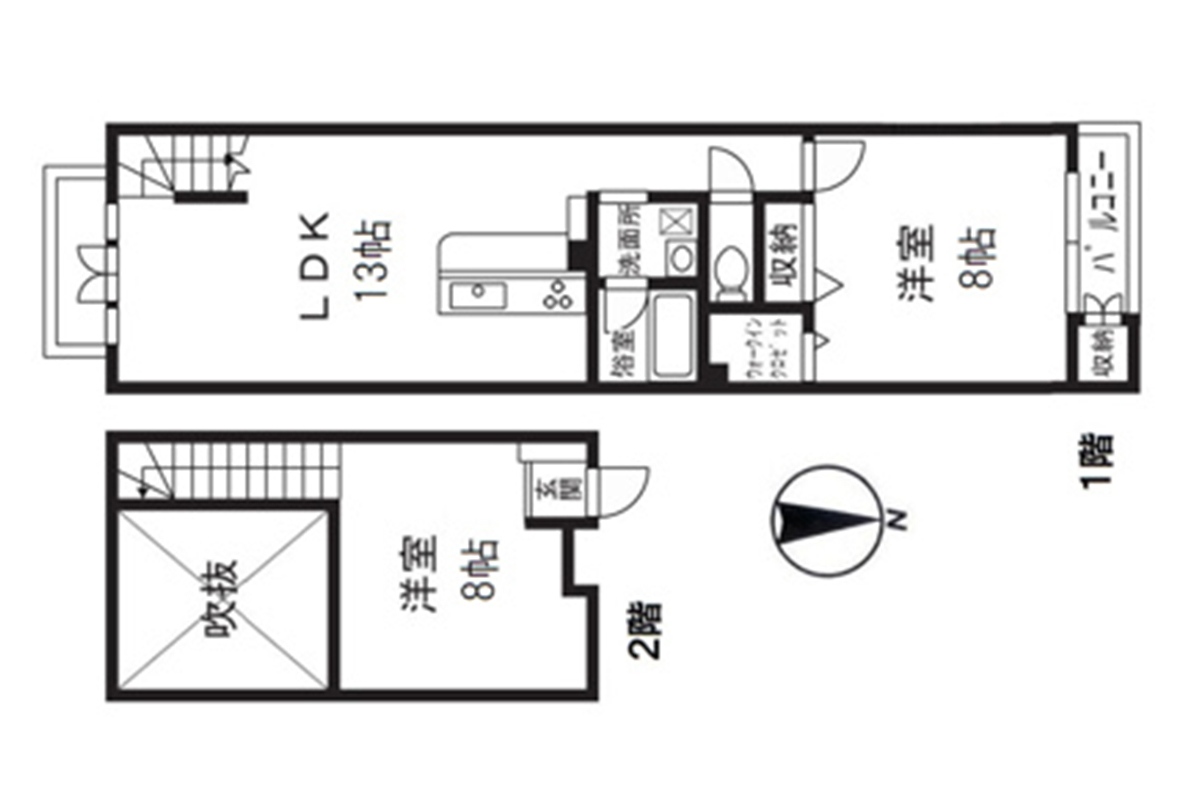
どの部屋も階段を上って、玄関は2階にあります。
玄関を開けると、ここから大容量の収納の始まり。玄関にもたっぷりと収納スペースが設けられています。
そして吹き抜けと繋がる洋室。コンクリートとフローリングの空間に襖という組み合わせが新鮮ですね。
(募集のお部屋は襖がなく、木の柵になっています/写真参考)
このお部屋は書斎か、セカンドリビングのような使い方でしょうか。吹き抜けの前に広がる大きな窓が気持ち良いです。
下に降りるとLDK、水回り、洋室がもう一部屋。
LKDは一押しの大きな窓と吹き抜け。窓+高窓で光がたっぷり取り込まれます!!外観からの期待感を裏切らない、気持ちのいい空間です。
キッチンにはカウンターもあり、軽食ならここで済ませられますね。
家族団らんのカウンターキッチンです。
奥の洋室は広めのバルコニー、普通のクローゼットに加えて、ウォークインクローゼットまで!
大大大容量で、これで収まらいことはないのではないでしょうか…
1階ですが、外よりも少し視線の高さは高め。人通り・車通りは多くないので、昼間はレースカーテンがあれば十分かもしれませんね。
また南向きでバルコニーが広め!!たっぷりと陽が射すので、植物をたくさんバルコニーで育成されている方もいました。
バルコニーには収納スペースもあるので、ここにガーデニング用品を収納されているのでしょう。
コンクリート打ち放しというと、気にされる方も多い「寒さ」。
窓には断熱材・ペアガラスを使用しているため、夏は涼しく、冬は暖かく過ごせるんだとか。
駅から少し距離がありますが、自転車や車、バイクを停めることができるため移動手段を選べるのも嬉しい。
溝の口駅からは二子玉川や渋谷など都心へのアクセスも良好。武蔵新城からは、武蔵溝の口(溝の口)か武蔵小杉経由で都心へ。
駅までの距離を除けば、どちらの駅からでも渋谷や目黒には約30分の距離。
徒歩や自転車・バスの時間を加えても、45~50分程度。これなら通勤も無理ないでしょうか?
駅から離れてはいるものの、徒歩5分圏内に広い駐車場を備えたスーパー、徒歩1~2分の距離にドラックストアやコンビニもあります。住むには問題ない利便性です◎
少し都心から離れたいけれど、離れすぎるのも…にぴったりな立地でした。
是非一度ご覧になっていただきたい物件です。
※ペット:不可
※エレベーター:無(2階が玄関です)
※インターネット無料
※駐輪場・バイク置き場・駐車場
→空き状況は要確認
──────────────────────────
まずは、ガレージ賃貸(青山物産)と、ゆるくつながりませんか?
是非フォローしてみてください!
──────────────────────────












































































































