申込あり、内見や申込についてはご相談ください
まあるいカーブに導かれた先には、存在感たっぷりのタマゴ型の空間。
築50年超えのレトロマンション内にある、ユニークなリノベルームのご紹介です。
物件は大江戸線・牛込柳町駅から歩いて6分。
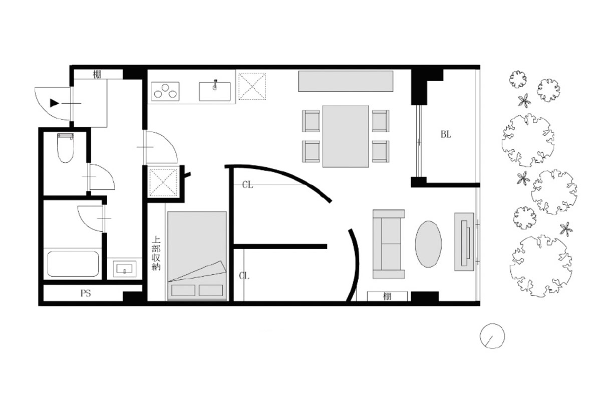
お部屋は51.70㎡のワンルーム。
南西向きのリビングには樹々の合間からたっぷりと自然光が差し込み、豊かな陽だまり。
無垢フローリングに窓から見える緑が映え、ナチュラルなムードが漂います。
床材はアカシアを使用されているそうで、素足で質感を感じながら過ごすのも心地がよさそうです。
お部屋の中で存在感を放つのは、なんといってもこのタマゴ型の空間!
ぽっかり口を開けた四角から、くぐるように空間内へ入ると、ちょっとした秘密基地気分が味わえます。
入口は2箇所、3分割されたスペースはサービスルームの位置付け。
ハンガーパイプや造作棚も備わっており、クローゼットやワークスペース、寝室とライフスタイルに合わせて使い分けができそう。
寝室使いかなと思われる上部収納付きの空間には、ダブルベッドも収まりそうでした。
壁の高さは天井から15cmほど低くなっており、空調や換気をリビングのエアコンで一括管理しやすい作りになっています。
上部には隙間があるため、完全な個室として使いたい場合は少々難しいかもしれません。
リビング部分に圧迫感があまりないのは、壁のやわらかなカーブのおかげでしょうか。
独特のおこもり感は集中する作業にももってこいで、なんともいえない居心地のよさを育んでくれそうです。
シューズラックはオープンタイプ。
玄関の三和土部分の模様にもさりげないこだわりを感じました。
4階屋上には物干し場もあり、シーツやタオルケットなどの大きな布ものも気持ちよく乾かせそう!
エントランスや共用部分は大規模修繕によってメンテナンスされ、管理体制も良好です。
周辺は新宿区でありながら、閑静な住宅街が広がるエリア。かつては夏目漱石や永井荷風といった文豪が住んでいたことでも知られ、街中にもどこか文化的な風情が漂います。
神楽坂や飯田橋なども徒歩圏内で、渋谷・新宿・池袋方面へのバス路線もあるなど、アクセスも良好。
駅前にはスーパーやドラッグストアがあり、お買い物環境も充実しています。
敷地内の緑も豊かなレトロマンションで、オンリーワンな空間に包まれてみませんか?
──────────────────────────
まずは、ガレージ賃貸(青山物産)と、ゆるくつながりませんか?
是非フォローしてみてください!
──────────────────────────

























































































