閑静な住宅街が広がることで知られる、目黒区・柿の木坂エリア。
ふたり暮らしはもちろん、ゆとりあるひとり暮らしにもおすすめなシンプルデザイナーズのご紹介。
東横線・都立大学駅からは目黒通りを渡って徒歩6分ほど。
「柿の木坂」と坂が付いた地名なだけあり、ゆるやかな傾斜地であることが特徴。
とはいえ息が上がるほどの勾配ではなく、物件までの道のりもアップダウンを感じにくい道のりでした。
途中にある柿の木坂通りには「柿の木坂商和会」として、衣食住から各種サービスまでぎゅっと充実のラインナップ!
昔ながらの八百屋さんや鮮魚店、なんだか気になるカフェやギャラリーまで、新旧のお店が立ち並んでいます。
ご近所の「めぐろ区民キャンパス」はパーシモンホールや図書館、体育館などがある複合施設型の公園。
芝生広場で日向ぼっこをしたり、小川のせせらぎをBGMに歩いているだけでも気持ちのよい憩いスポットです。
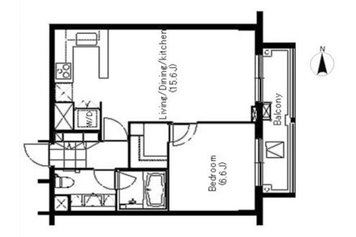
物件は3階建ての低層マンションの2階部分、室内は50.4㎡の1LDK。
内装は淡いトーンの床材に白基調でいたってシンプル、どんなインテリアとも調和してくれそうです!
そんな中でも、コの字型キッチンやビビッドなグリーンの玄関ドアなどキラリと光るポイントあり!
リビングは15.6帖と家具配置もしやすい、ゆとりある広さです。
壁面にはピクチャーレールが付いていて、お気に入りのアートやグリーンインテリアを飾るとお部屋の表情も豊かになりそう。
ほかにはプロジェクター用のスクリーン掛けたり、見せる収納にしたりと使い道はいろいろ◎
採光面は東向き、とくに暑い季節には穏やかな陽当たりなのがメリットかもしれません。
バルコニーは車道に面しておらず、近隣の交通量も少ないので騒音等の心配は少なそうな印象でした。
扉の向こうは6.6帖の洋室。
リビング・洋室どちらからも出入りできる、ワイドバルコニーなのも開放感があってうれしいポイント。
朝陽を感じながら、心地よく目覚めることができる寝室になりそうです。
ネックがあるとすれば、クローゼット等の備え付け収納がないこと。
荷物量にあわせて、洋室内やリビングの一画に収納スペースを設ける工夫は必要そうです。
キッチンは意外と少ないコの字型タイプ!
ビルトインオーブンに3口コンロとお料理好きな方にもうれしい充実仕様!
カウンター部分にも収納があり、ケトルや調味料などを置いておけるスペースが多いのもうれしいですね。
キッチン横の扉内には洗濯機置場が隠れていました。
水回りも大きな鏡の洗面台にm浴室乾燥、追い焚きと設備も充実◎
玄関横には2面でたっぷりとしたシューズクローゼットがありました!
お休みの日はちょっと足を伸ばして碑文谷公園や駒沢公園へお散歩。
個性あふれる目黒通りのインテリアストリートを開拓するのも楽しみのひとつになりそう。
都立大学は急行は止まりませんが、それでも渋谷までは10分ほど。
東横線の中でものどかなムード漂う街の雰囲気は、そんなところも理由のひとつかもしれません。
ほどよいアクセスのよさ、そして穏やかな周辺環境。
どちらも重視したい!という方にお勧めないいとこどりのお部屋です。
※写真は清掃前の状態です
※駐車場:31,500円/月~+敷金1ヶ月
→空き状況は要確認
※駐輪場:料金・空き状況は要確認
※2人入居/子供:可
※ルームシェア:相談
──────────────────────────
まずは、ガレージ賃貸(青山物産)と、ゆるくつながりませんか?
是非フォローしてみてください!
──────────────────────────



















































































