リノベルームラヴァーのみなさまに朗報です!
「こんなお部屋に住みたいなあ」を具現化したお部屋、石川台にありました!
東急池上線は五反田~蒲田駅間を行き来する、3両編成からなるローカル路線。
都内に長年お住まいでも実はなじみがなかったり、ぱっと駅名が出てこないという方も少なくないかもしれません。
アクセス面で懸念がある方も心配ご無用!渋谷・新宿方面へは五反田乗り換えで30分以内。
空路利用が多い方にも蒲田から羽田空港行きのシャトルバスもあり、40〜50分と実は便利な立地。
短い距離感に駅がひしめき合っているのも池上線の特徴。
有名なのは戸越銀座商店街ですが、各駅前にも特色豊かな商店街があり、活気ある生活圏が広がっています。
そののどかな賑わいといったら、一度住んだら離れがたい魅力があるというのも納得です。
物件最寄りの石川台駅は五反田と蒲田のちょうど中間地点。お散歩がてら季節の風景を楽しめる洗足池はすぐおとなりの駅です。
街の台所といえば、虹をあしらったゲートがハッピーな雰囲気を醸し出す希望ヶ丘商店街。
スーパーはもちろん、生鮮小売店や飲食店、雑貨にお花屋さん、整体に美容院等々、ないものはないほど充実のラインナップ。
お祭りや年中行事といった季節ごとの催しも盛んに行われており、地域のゆるやかな繋がりや懐の深さが感じられます。
石川台駅からは物件までは中原街道を渡って徒歩3分ほど。
商店街とは反対側のエリアですが、買い周りも苦にならない距離感。
駅前にも9-23時営業のピーコックストアがあるので、行き帰りの動線上でのお買いものもスムーズです。
のんびり流れる呑川(のみかわ)沿いに佇む、アイボリーカラーのタイルの建物が今回の物件。
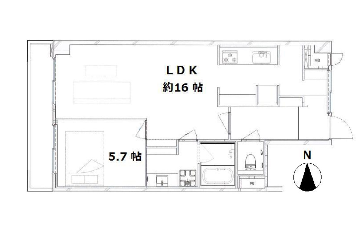
お部屋は4階、エレベーター横の角部屋です。室内は約56㎡の1LDK。
ゆったりひとり暮らしはもちろん、おふたり暮らしでもゆとりのある広さです。
扉を開けた瞬間、ここに住みます!と思わず言ってしまいそうな空間が広がっていました。
無垢床のナチュラルな温かみ×躯体現しのコンクリ天井。
グリーンインテリアがよく映えそうなTHEリノベな趣がたまらないですね!
約16帖の縦長LDKと、ダブルベッドも収まる5.7帖の洋室。
居室は西向きでバルコニー前は高い建物もなく抜けがよいため、やわらかく自然光が届きます。
LDKにはライティングレールで照明をプラスでき、洋室はシーリングライトが取り付け可能。
キッチンと水回りは異なる床材で、お手入れしやすくなっています。
背面と冷蔵庫スペース奥の2箇所に造作棚があり、パントリーとして食器棚/食材ストックと使い分けしやすい配置。
玄関からは直接キッチンにアクセス可能なつくりで間には腰掛け兼手荷物台のようなスペースが!
ここに荷物を一旦置いてキッチンで回収、という便利な日常動線ができそうです。
玄関は土間仕様、高さの変えられるシューズ用の造作棚も充分なボリューム。
ネックがあるとすればクローゼットのような衣類用の収納がないこと。
ワードローブが多い方は収納の工夫が必要そうです。
ハンガーラック等を活用して、ミニマルに見せる収納を楽しむのもいいかもしれません。
また大通り沿いではないものの、バルコニー側の車道の交通量は比較的多め。
住んでいるうちに慣れそうではありますが、窓を閉めていても多少走行音は聞こえますのでご内見時にご確認ください。
周辺にが高い建物が少なく、この辺り一帯は心なしか空も広く感じます。
愛着が湧く予感しかない、池上線というチョイス。
はじめての東京でもどこか懐かしく、在京歴が長く違うエリアに住んでみたい方にもおすすめ。
きっと心地よい時間が待っているはずですよ。
気になる方はお早めにお問い合わせください!
※2018年フルリノベーション
※別途水道代3,000円徴収あり
──────────────────────────
まずは、ガレージ賃貸(青山物産)と、ゆるくつながりませんか?
是非フォローしてみてください!
──────────────────────────






































































