三軒茶屋と下北沢の中間地点を横断する、梅丘通り。
SOHO・事務所利用も可能な2LDKのお部屋をご紹介します!
最寄り駅は小田急線「世田谷代田駅」から徒歩8分ほど。
自転車があればさらにフットワーク軽く、三茶や下北へと行動範囲がぐっと広がります。
梅ヶ丘駅から三宿エリアを繋ぐ梅丘通り沿いに位置するこちらのマンション。
物件のお隣にはスーパー「信濃屋」のワイン館、向かいには食品館。
信濃屋は少し変わった海外の食品も多く、特別な日のおうちご飯にも重宝するスーパー。
徒歩5分の場所にはまいばすけっと、徒歩10分の場所にはサミットもあるので用途ごとに使い分けができます。
共用部分はなかなかのレトロさがありますが、中に入ればリノベーションされたばかりの清潔感あるお部屋◎
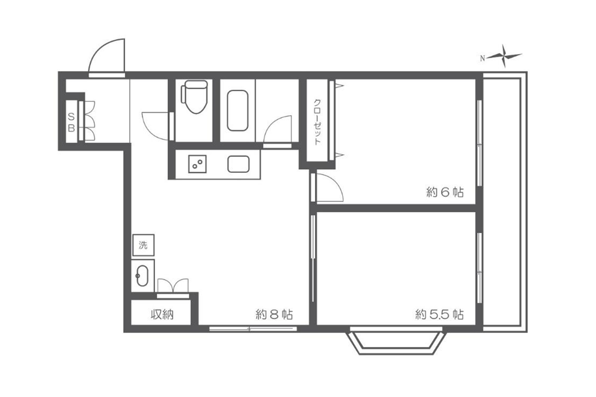
8帖のリビングに5.5帖と6帖の洋室がある2LDKの間取り。
洋室二部屋はどちらも南向きのバルコニーに面していて明るさたっぷり!
室内の心地良さに加えて、最上階・角部屋の好条件◎
通りに面しているため車の走行音などは多少あるのでご注意を。
その他に懸念点は洗面台がリビングの見える位置にあることと、脱衣所がないことでしょうか。
おふたりで暮らす場合は気になる所かもしれません。
立地や建物の雰囲気的に事務所としてもおすすめしたいお部屋。
この広さなら事務所兼住居としても十分そうです◎
いくつか気になる点はあるものの、室内の清潔さや陽当たりの良さは大きな魅力。
オフィス探しに難航されている方や、リノベーションされたお部屋に住みたい方は是非ご相談ください◎
※エレベーター:無
──────────────────────────
まずは、ガレージ賃貸(青山物産)と、ゆるくつながりませんか?
是非フォローしてみてください!
──────────────────────────































































