申込あり、新規内見受付停止中
物件があるのは東横線・都立大学駅。
中目黒と自由が丘に挟まれて、どことなく控えめなイメージのあるエリアかもしれません。
東横線内でものどかさがありながら、住みやすさと便利さの塩梅がちょうどよい街です。
改札を出た目の前には24時まで営業の東急ストア、近隣にも複数スーパーがあるなど選択肢が豊富。
呑川本流緑道沿いを緑が丘駅方面に歩くこと9分。
物件までの道のりにもコンビニ、ドラッグストア等もあるので日々のお買いものにも便利です。
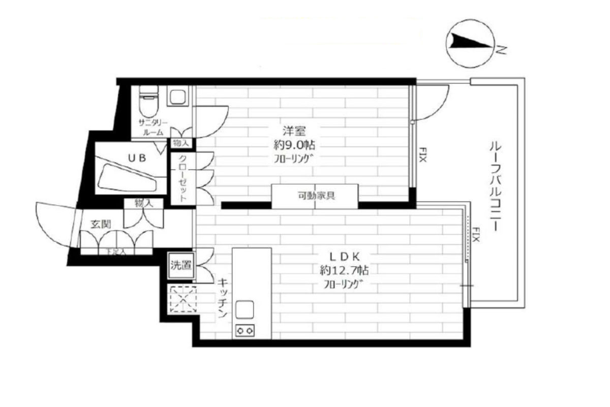
お部屋は46.44㎡の1LDK。
内装は壁面がホワイトタイル×コンクリートで材質のコントラストを楽しめる空間。
床材はブラウンカラーでほどよく暖かみもプラス。
約12.7帖の長方形のリビングはインテリアもすっきりと配置しやすいですね。
ライティングレールにはお好みの照明をプラスしても◎
ゆったりリビングにはスタイリッシュな存在感のステンレスキッチン!
調理スペースも広めでお料理好きの方にもうれしいですね。
奥行きがあるので、調理家電やツールスタンドなどを配置できます。
約9帖の洋室とはお部屋中央の柱でゆるやかに区切られており、ワンルームのような感覚でも使えそう。
隙間の空間を埋めるように可動式収納を活用すれば、しっかり1LDKとして空間を分けることができます。
2部屋どちらからもルーフバルコニーに出入りでき、リビングはL字採光になっており開放感が感じられました。
採光面は北向きですが、階層高めで陽射しを感じられるのでお洗濯ものもしっかり乾きそう。
前面に建物があるので抜けがいい、というわけではありませんが、奥行・広さがあるので植物好きな方ならグリーンポットなど置いて楽しむのもよさそうです。
水回りもスタイリッシュなガラス張り!
入口部分にはカーテンを取り付けできるのでプライバシーも確保できます◎
浴槽は三角に近いような形状でややコンパクトながら、なんとなくこのお部屋らしいという感じもするカタチ。
もちろん浴室乾燥&追い焚きも備えています!
洗濯機はキッチンスペースの扉内に収納するタイプ。
玄関にはさりげなくコート掛けが付いていたり、たっぷりとしたシューズボックスが両サイドにあったりとこれまたうれしい仕様です。
駅前からは緑道沿いに行き来する道のり。
ランニングコースにされている方も多く、健やかな空気が漂うエリアです。
春には満開の桜並木、四季折々の眺めを楽しむことができそうですね。
掲載するとすぐに埋まってしまう人気デザイナーズ。
気になる方はお早めにお問い合わせください!
▼同じマンション内、別のお部屋もご紹介中!
(募集終了のお部屋も含みます)
緑道沿い 個性派ワンルーム
窓から緑 機能的ワンルーム
──────────────────────────
まずは、ガレージ賃貸(青山物産)と、ゆるくつながりませんか?
是非フォローしてみてください!
──────────────────────────

















































































