写真は同じマンション別室、似た間取りのものです
募集の部屋は、写真の部屋に比べて少し洋室がコンパクトです
募集の部屋の情報・条件等は、物件概要と図面をご確認ください
申込あり、内見や申込についてはご相談ください
3層メゾネットの秘密基地感溢れる賃貸物件のご紹介。
地下でも気にならない、ちょっと変わり種な物件、theデザイナーズ物件に住みたい!という方におすすめです。
物件はバスがとっても便利なエリア、世田谷区深沢に隣接した世田谷区等々力。
最寄りのバス停は4箇所。桜新町駅・自由が丘駅・等々力駅・渋谷駅・目黒駅からアクセスできます。
一番本数が多いのは自由が丘駅行のバスでしょうか。
自由が丘駅行きのバスはピーク時に1時間に13本。5分に1本くる便利さで、バスと電車を乗り継いで渋谷駅まで26~35分ほど!
横浜まで40分、新宿や品川までも45~47分。ドアtoドア1時間以内は目指せるでしょうか。
乗り換えが面倒だなーという時は、渋谷・目黒からバス1本で帰宅もできます◎
バス利用と聞いて後退りしてしまいそうですが、思っているよりも便利でしょう?バス利用は…となる方にも一度訪れてみていただきたいです。
なお駅までバス利用(駅距離があるから)と言って不便ではありません。
スーパーサミットは歩いて3分、ドラックストアは徒歩2分、コンビニもすぐ近くの立地!!
目黒通り沿いに出れば大きなスーパーが2店舗。駐車場完備のスーパーで品揃えも豊富です。
駅からの距離はあっても便利な立地で、閑静な住宅街というのがポイントです◎
また駒沢公園は歩いて16分(自転車6分)の距離!
気候の良い季節はお散歩にも良い距離ではないでしょうか。
休日はぷらーっと駒沢公園通りのお店に寄り道をして珈琲や軽食を片手に駒沢公園へ。駒沢公園には、サイクリングコース・ジョギングコースもあり身体を動かすことが趣味の方にはぴったり。
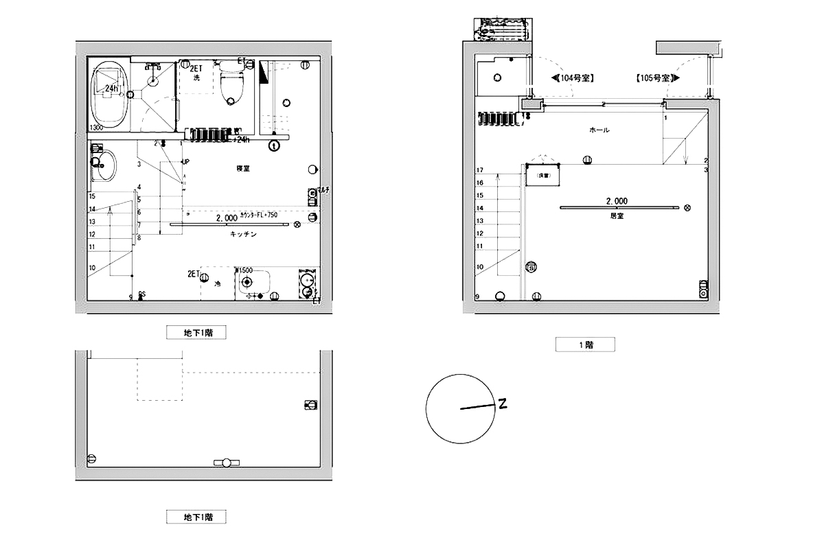
室内はB1-1階のメゾネットで、B1階は少し潜り込むような空間もあり、3層のようです。
そして玄関入ってすぐが洋室というおおらかさ。ここがメインに過ごす空間となります。
土間空間もうまく活用して植物に囲まれる空間にすると癒されそう。
下階に降りると複雑な秘密基地のような空間。
キッチン背面には小さなカウンター付き。ここで食事を摂るのか、作業スペースの一つと捉えるべきか…
内見にお越しの方は、是非実物を見ながら一緒に吟味しましょう。
さらに少し階段を下りると水回り空間+クローゼット空間+下に潜り込むタイプの床下収納空間。
ちょうどキッチンの真下の空間になります。
少し籠ることができる空間が落ち着くという方はここを寝所にしても良いかもしれません。
水回りはコンパクトにまとまっていますが、浴室がガラス張りのため窮屈さは感じにくいです。
ひと癖ある秘密基地デザイナーズ物件。気になる方はぜひお問い合わせください!
11月7日(木)から内見開始予定!
※ペット/楽器/事務所/子ども:不可
──────────────────────────
まずは、ガレージ賃貸(青山物産)と、ゆるくつながりませんか?
是非フォローしてみてください!
──────────────────────────



















































