大きな窓が魅力的なデザイナーズ物件!
都心へのアクセスもほどよく、眺め良く、ペット可な物件はいかがでしょうか。
最寄り駅は田園都市線用賀駅。
各駅停車の駅ですが、渋谷までは1本10分ほどの距離。
朝の急行は大変混みますので、各駅の方が大混雑に巻き込まれずに済みそうでしょうか。
用賀は住環境に定評あり、1人暮らしからファミリーまでご要望の多い駅の1つです。
駅ビルと駅前商店街には賑わいもあり、駅前にスーパーが3つ。そして徒歩圏に砧公園や馬事公苑があり、利便性だけでなく緑豊かな環境も享受できます。
ご紹介のマンションは、駅から7分のデザイナーズ物件。
246に面していますので、音を立てずに静かにしていると車の走行音が聞こえてきます。6~7階が故に、頭に響く音ではありませんが、音の感じ方には個人差がございますので、是非現地でお確かめください。
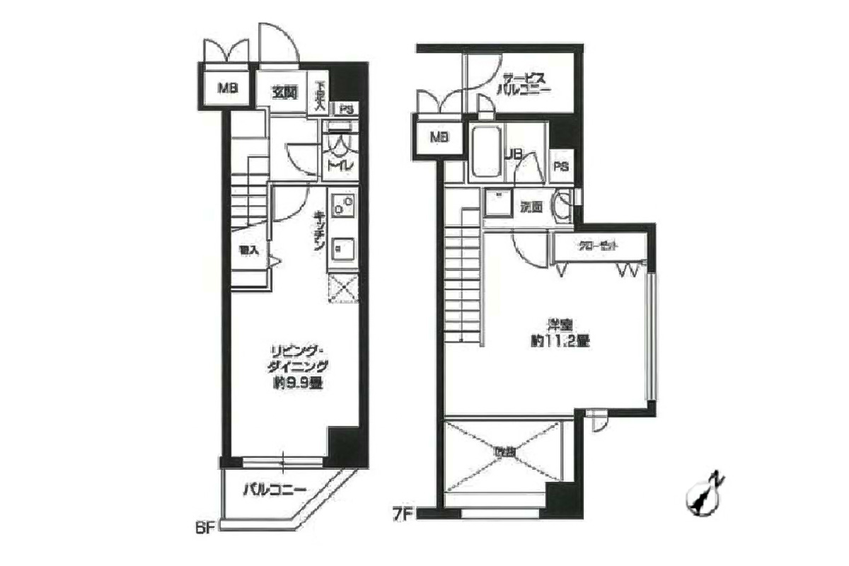
お部屋約50㎡のメゾネット。
少し珍しいのは洋室のほうが広い形の間取りであること。
7階の洋室は11.2帖の広さがあり、大きな窓から青い空を臨みます。
高所恐怖症の方には正直おすすめできませんが、窓際にベッドを置いて朝陽を浴びて起きましょう!吹き抜けに面した箇所にデスクなどを置いても良さそうです。
下の階は9.9帖のLDK。
一般的なワンルームのような形のイメージが近いでしょうか。
2人掛けのダイニングテーブルと2シータソファであれば、収めることができるでしょう。
上階を広く使いたい場合は、下階にベッドとダイニングテーブルというものありでしょうか。
収納は洋室にクローゼットの他、階段下・階段入口サイドにも収納スペースがあります。
奥行の深さを生かして、キャリーケースなど大きなものの収納に役立ってくれそうで、実用性が嬉しい収納です。
大きな窓のあるメゾネットデザイナーズ物件。
小型犬か猫1匹までならペットもOK!
ビビっときましたら、是非お声がけください。
※インターネット無料
※ペット可:+敷金1ヶ月(犬)、+敷金2ヶ月(猫)
小型犬または猫、1匹
──────────────────────────
まずは、ガレージ賃貸(青山物産)と、ゆるくつながりませんか?
是非フォローしてみてください!
──────────────────────────
































































-6-150x150.jpg)











