ご希望の多い桜新町エリアで、馬事公苑までは歩いて10分。わんちゃんならお散歩に良い距離です。
猫ちゃんなら、南東向きの陽当たり良いお部屋。日向ぼっこにぴったり。
敷金・礼金がゼロで、さらにフリーレント2ヶ月付き!!
初期費用を抑えたい方にもおすすめです。
物件は桜新町駅から8分ほど。
このエリアの方はお馴染みのスーパーライフの斜め向かいのマンションです。
ライフは夜24時まで営業しているので夜遅くなっても安心です。
この駅距離とスーパーの近さは便利で嬉しいですね!
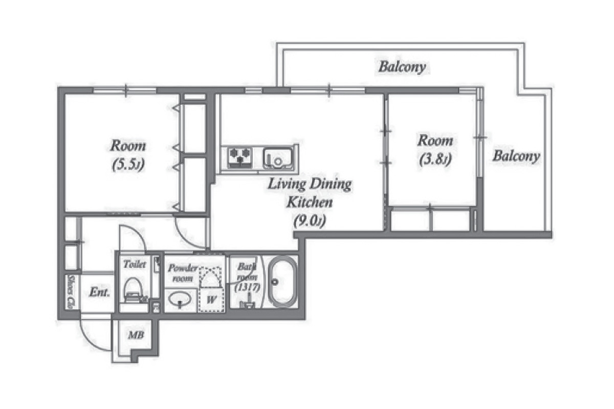
部屋は47.12㎡の2LDK。
50㎡に満たない2LDKなので、2人暮らし+ペットならちょうど良い広さでしょうか。
キッチンを含まないリビングダイニングは10.4帖なので、ここにダイニング・ソファをまとめるならコンパクトなものを。
もしくは隣の約5帖洋室も繋げれば、約15帖のリビングダイニングに!繋げて1LDKとして使うならば、ダイニングテーブルもソファもゆったりと配置できます。
キッチンは3口コンロ・グリル付きで、背面に冷蔵庫等の家電スペース、サイドに可動棚付きで自炊派には嬉しい収納量。
目の前がスーパーなので買いだしもすぐですね◎
収納は洋室2部屋それぞれに。2人分なら収まるかもしれませんが、ファミリーや荷物量が多い場合は少し工夫が必要です。
設備は浴室乾燥や追い炊き機能、宅配ボックスももちろん付いていて、共用部は二重のオートロックになっており、セキュリティにも安心感があります。
ペットも家族みんなで暮らせるお部屋、条件に合う方がいらっしゃいましたらお早めにお声掛けください!
※敷金・礼金無し
※フリーレント2ヶ月
※他2部屋も募集中!(内装は異なる可能性がございます)
2階:285,000円・50.85㎡・2LDK・間取り図51枚目
※同じマンション他のお部屋もご紹介しております(募集終了も含む)
ペットと桜新町ライフ
──────────────────────────
まずは、ガレージ賃貸(青山物産)と、ゆるくつながりませんか?
是非フォローしてみてください!
──────────────────────────

-1.jpg)
-2.jpg)
-3.jpg)
-7.jpg)
-8.jpg)
-4.jpg)
-5.jpg)
-9.jpg)
-13.jpg)
-10.jpg)
-11.jpg)
-12.jpg)
-6.jpg)
-17.jpg)
-16.jpg)
-15.jpg)
-14.jpg)
-18.jpg)
-19.jpg)
-23.jpg)
-22.jpg)
-20.jpg)
-24.jpg)
-21.jpg)
-25.jpg)
-27.jpg)
-31.jpg)
-28.jpg)
-29.jpg)
-30.jpg)
-26.jpg)
-33.jpg)
-34.jpg)
-35.jpg)
-32.jpg)
-36.jpg)
-37.jpg)
-38.jpg)
-39.jpg)
-40.jpg)









-41.jpg)
-1.jpg)

















