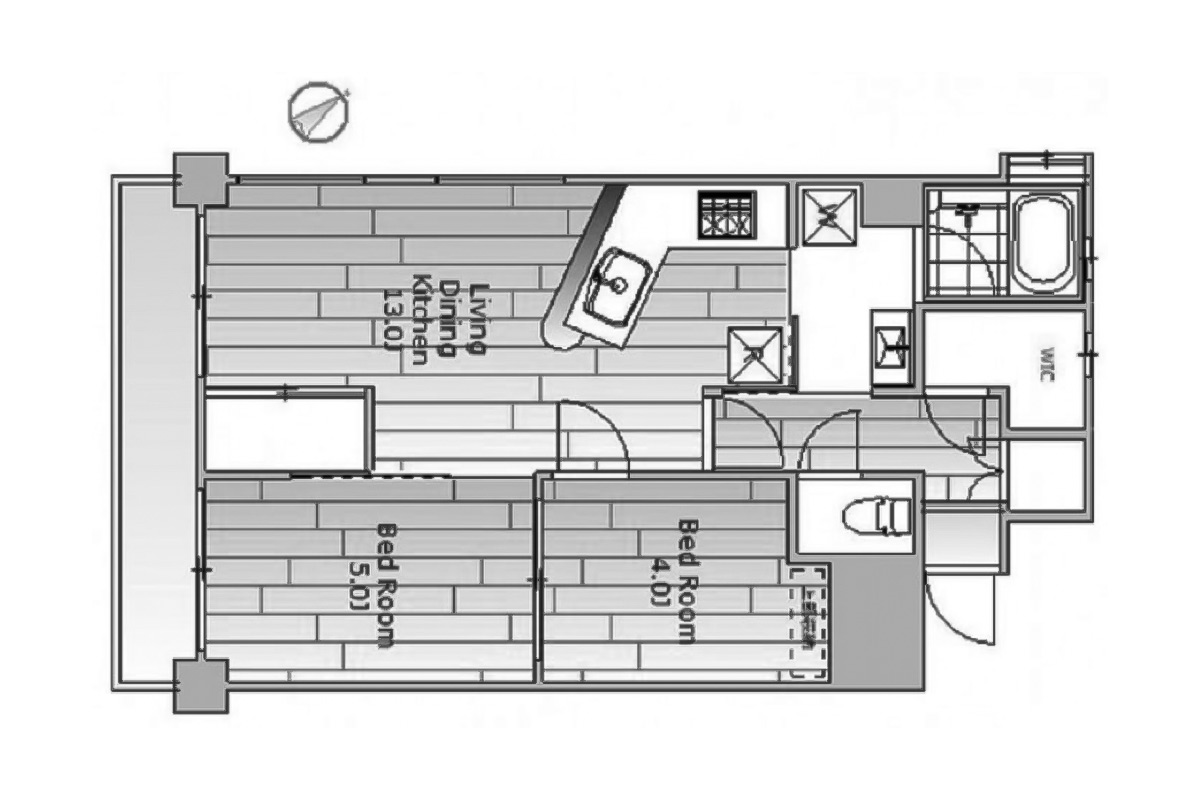
くの字に曲がったキッチン、大きなタイル張りのバスルーム。レトロ物件かと思いきやコンクリート打ち放しのウォークインクローゼット!
少し不思議なでも便利な間取りと利便性良い駅近の立地の物件です。
物件の最寄りは東急池上線「雪が谷大塚駅」
池上線はガレージ賃貸でも時折ご紹介している大田区のローカル線。スタッフ皆が住んでみたい路線・好きな路線の1つに挙げる、隠れ人気路線。東急沿線の中ではお手頃な家賃ということも魅力の1つです。
雪が谷大塚は五反田から蒲田までカーブを描きながら縦断する池上線のちょうど真ん中あたりで、どちらに向かっても約10分の距離です。
雪が谷大塚から渋谷・品川・東京などターミナル駅へは20〜30分ほど。駅が車庫にもなるため、なんと上り五反田行きの始発駅! 7時台では2本に1本が始発電車なんだとか。通勤電車で座れることも大きな魅力ですね!
また大井町や二子玉川へも乗換1回、自由が丘も自転車なら10分少々で行けてしまいます。
羽田空港アクセスも良好です◎
駅を降りるとすぐに大型スーパーがあり、たいていのものはここで揃う品揃え。
創業90年超のお豆腐屋さんに昔ながらの八百屋さん、魚屋さんなどもあり、自炊派には充実したお買いもの環境です!
同じ通り沿いには喫茶店、蕎麦屋、寿司屋、ちょっとおしゃれなワイン&カフェバーといった飲食店も軒を連ねています。さくっと入れるチェーン店もありますが、活気とバラエティに富んだ個人店が多いのもこのエリアの魅力と言えそうです。
物件は駅前の中原街道から自由通り沿いへ少し入ったところ。3階建ての低層マンションの2階が募集のお部屋です。
約55㎡の2LDKですが、各部屋の繋がりを考えるとリモートワークのある2人暮らしにちょうど良さそう。
くの字に曲がった大きなカウンターキッチンは収納が豊富、米櫃のような形をした収納もありました◎
作業スペースも広く、もちろん3口コンロ・グリル付き、料理好きにおすすめです。
洋室はリビングから廊下を挟まず2部屋。
また洋室間でもドアを開ければ行き来ができる不思議な形ですが、奥の洋室に風を取り込んだり、掃除をする際には移動が少なく済んで便利かも。
洋室2つなので、1つは仕事部屋にしても良し、収納部屋にしても良し。というのもウォークインクローゼットはあるものの、ハンガーラックの長さを考えるとやや洋服用の収納スペースは少ない印象。
玄関すぐ近くにあるウォークインクローゼットは敢えてアウトドア用品や季節外の収納庫にして、普段使いの洋服はハンガーラックを追加して4帖のお部屋を丸っと衣装部屋にするなんて使い方はいかがでしょうか。
またリビングにある押入収納は洋室からも利用できます◎
押入タイプの収納は、奥行が深いので、半分ずつそれぞれの収納空間としても使えそうです。
レトロさも残る少し不思議なでも便利な間取りと利便性良い駅近の立地の物件。
住む人によって使い方が変幻自在なお部屋にビビっと来ましたら、お問い合わせください!
──────────────────────────
まずは、ガレージ賃貸(青山物産)と、ゆるくつながりませんか?
是非フォローしてみてください!
──────────────────────────















































































