fbpx

深沢 並木道沿いのデザイナーズ|ペット可

物件概要

賃料

掲載終了しました

共益費・管理費

7,000円

所在階

3階/8階建て

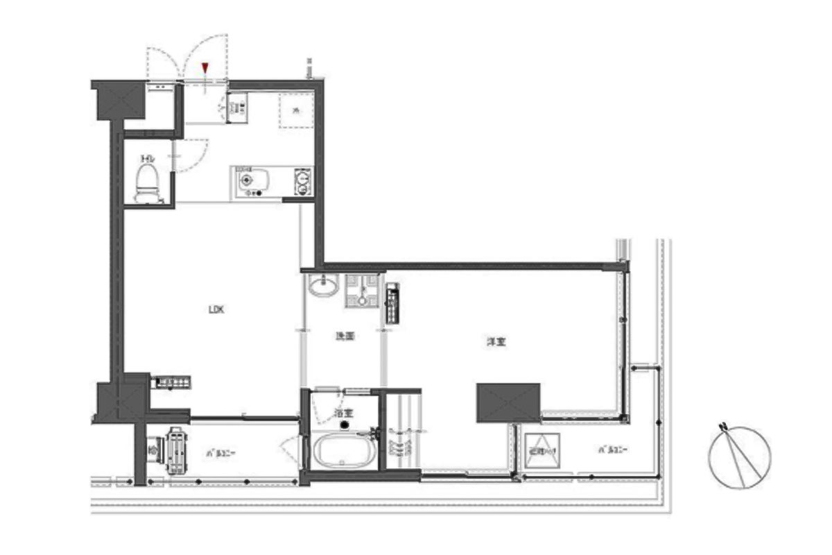
間取り

1LDK

面積

49.25平米

間取り図

+拡大表示

敷金/礼金

2ヶ月/なし

初期費用概算

約857,000円

所在地

東京都世田谷区深沢5丁目

構造

RC(鉄筋コンクリート)造

築年

令和6(2024)年5月

取引形態

仲介

契約形態&契約期間

普通賃貸借2年

条件

ペット可
:+敷金1ヶ月+賃料5,000円増
小型犬または猫、1匹まで
不可
:事務所/楽器

アクセス

バス停「深沢坂上」(桜新町駅より5停留所目[乗車8分]) 徒歩1分

バス停「深沢坂下」(自由が丘駅より7停留所目[乗車13分]) 徒歩1分

バス停「東深沢中学校」(自由が丘駅より6停留所目[乗車10分]) 徒歩4分

バス停「園芸高校前」(等々力駅より2停留所目[乗車3分]) 徒歩4分

東急大井町線「等々力駅」 徒歩19分(自転車7分)

東急大井町線「尾山台駅」 徒歩19分(自転車7分)

東急田園都市線「桜新町駅」 徒歩28分(自転車8分)

東急東横線「自由が丘駅」 徒歩32分(自転車10分)

設備

エアコン、B.T別室、モニター付ドアホン、独立洗面化粧台、照明器具、室内洗濯機置場、エレベーター、温水洗浄便座、システムキッチン、インターネット光、収納スペース、オートロック、宅配ボックス、デザイナーズ、角部屋、駐輪場

備考

※ディンプルキー/ダブルロック
※お湯はり機能:有

3階は申込あり 内見・お申込みはご相談ください
2階のお部屋も募集中!
2階は12月7日から内見開始!(先行申込不可、内見開始日の内見をおすすめします)

家賃158,000円・共益費7,000円・間取り1LDK(間取り図 画像57枚目)・広さ45㎡

コンクリート打ち放しのおしゃれデザイナーズマンション、築浅物件のご紹介です。
そしてデザイナーズマンションには珍しいペット可!!
ペットと暮らしているけれど、内装にもこだわりたいという方必見です。

物件はバスがとっても便利なエリア、世田谷区深沢です。
バス停名を見て、このあたりの地域に詳しい方は既にご存知でしょうか。
最寄りのバス停は4箇所。桜新町駅・自由が丘駅・等々力駅からアクセスできます。
さらにバスに乗り続けるとバスのみで、都立大学駅や渋谷、目黒にもアクセス可能です◎雨の日は乗り続けると楽々ですね。

また駒沢公園は歩いて15分(自転車5分)の距離!
ペットのお散歩にも良い距離ではないでしょうか。
休日はぷらーっと駒沢公園通りのお店に寄り道をして珈琲や軽食を片手に駒沢公園へ。
駒沢公園には、サイクリングコース・ジョギングコースもあり身体を動かすことが趣味の方にはぴったり。

室内は約50㎡の1LDK。
13〜15帖くらいのLDKと6〜8帖の洋室です。
LDK・洋室どちらにもバルコニーがあり、洋室が駒沢公園通り沿い、南西向きのバルコニー。
並木道が借景で、気持ちよく目覚められそう!
洗濯物は通り沿いが気になる方はLDKのバルコニーに干すと良さそう。直射日光は入りにくい位置ですが、風の抜ける場所ですので、風乾燥できそう。
日が当たり過ぎても色褪せしてしまうので、干してお出かけするという方はこちらがおすすめ。

変わり種ポイントはLDKと洋室の間に、洗面所と浴室があること。スライドドアは左右どちらにも開けられるので、光の取り込み方が変えられます。
この形の1番のメリットは、廊下がないこと。廊下に割く面積が少なく、床面積を最大限に活用できます。
ちなみにトイレは洗面所とは別に玄関側にあるので、来客があっても安心です。

アクセスについて、一番本数が多いのは自由が丘駅行のバスでしょうか。
自由が丘駅行きのバスはピーク時に1時間に13本。5分に1本くる便利さで、徒歩込みで渋谷駅まで26~35分ほど!
横浜まで40分、新宿や品川までも45〜50分。ドアtoドア1時間以内は目指せるでしょうか。
バス利用と聞いて後退りしてしまいそうですが、思っているよりも便利でしょう?
バス利用は…となる方にも一度訪れてみていただきたいです。

また駅距離があるからと言って不便ではありません。
スーパーサミットは歩いて3分、ドラックストアは徒歩2分、コンビニもすぐ目の前の立地!!
目黒通り沿いには大きなスーパーが2店舗。駐車場完備のスーパーで品揃えも豊富です。

駅からの距離はあっても利便性良い立地で、閑静な住宅街に惹かれる方もいるでしょう。
ペットと暮らせるデザイナーズ物件!

気になる方はお早めにお問合せください!
※ペット相談:+敷金1ヶ月+賃料5,000円増
 →小型犬または猫、1匹まで
※不可:事務所/楽器

同じマンション、別のお部屋もご紹介中!(募集終了を含みます)
深沢 並木道沿いのデザイナーズⅡ│新築/最上階/ペット可

──────────────────────────
まずは、ガレージ賃貸(青山物産)と、ゆるくつながりませんか?
是非フォローしてみてください!



──────────────────────────

関連するお部屋

  1. 中目黒 日向に包まれて|LD17帖

  2. 緑を眺める くつろぎの住まいⅡ|最上階/ペット2匹可

  3. 用賀 青空と木のルーバルライフ

  4. 青空色のリビング|小型犬可/礼金ゼロ

  5. 用賀 キッチンが主役なリノベ│WIC

  6. 九品仏 南向きのルーフバルコニーⅡ│ペット可

物件のお問い合わせ

             

いただいたお問い合わせにつきましては、原則メールにて返信させていただきます。電話での連絡を希望される方は、メッセージ本文にその旨をご記入ください。

メールをいただいてから、3営業日(火・水定休)以内に返信させていただきます。

    必須
    必須
    ※半角英数で正確にご記入ください
    必須
    ※半角数字で正確にご記入ください
    必須

    ※定休日:火曜日・水曜日

    ※定休日:火曜日・水曜日
    必須

    ※具体的な時期をご記入ください
    ※通常、申込から2~4週間後の契約開始(家賃発生)となります
     契約開始希望日によっては交渉事項となりますので、あらかじめお含みおきください

    必須

    ※基本的には住居利用となります
    ※用途可否は物件概要の条件欄をご確認ください

    任意

    ※物件概要の設備・条件欄を必ずご確認上、チェックをお入れください
    ※ペット飼育については、部屋ごとに飼育可能な種類や数が異なりますのでご注意下さい
    ※物件敷地内駐車場に空きがない場合、近隣駐車場等はご自身での手配をお願いしております

    ご入力内容と下記注意事項をご確認いただきチェックを入れて下さい

    送信ボタンをクリック後、確認画面は表示されません
    登録のメールアドレスにメールが届きましたら、送信が完了しています
    【迷惑メールフォルダ】に届くことがございます
    確認メールおよび物件担当からの返信が届かない場合は、迷惑メールフォルダをご確認ください


    ガレージ賃貸は少人数での運営のため、当日・翌日など直近の日程をご希望の場合は内見日時の調整をお願いする場合がございます

      03-6413-9987 ガレージ賃貸お問い合わせ窓口
    内見予約はフォームから
    お問い合わせください。
    営業時間 9:30~18:00
    (火・水定休)
      

    物件概要

    賃料

    掲載終了しました

    共益費・管理費

    7,000円

    所在階

    3階/8階建て

    間取り

    1LDK

    面積

    49.25平米

    間取り図

    +拡大表示

    敷金/礼金

    2ヶ月/なし

    初期費用概算

    約857,000円

    所在地

    東京都世田谷区深沢5丁目

    構造

    RC(鉄筋コンクリート)造

    築年

    令和6(2024)年5月

    取引形態

    仲介

    契約形態&契約期間

    普通賃貸借2年

    条件

    ペット可
    :+敷金1ヶ月+賃料5,000円増
    小型犬または猫、1匹まで
    不可
    :事務所/楽器

    アクセス

    バス停「深沢坂上」(桜新町駅より5停留所目[乗車8分]) 徒歩1分

    バス停「深沢坂下」(自由が丘駅より7停留所目[乗車13分]) 徒歩1分

    バス停「東深沢中学校」(自由が丘駅より6停留所目[乗車10分]) 徒歩4分

    バス停「園芸高校前」(等々力駅より2停留所目[乗車3分]) 徒歩4分

    東急大井町線「等々力駅」 徒歩19分(自転車7分)

    東急大井町線「尾山台駅」 徒歩19分(自転車7分)

    東急田園都市線「桜新町駅」 徒歩28分(自転車8分)

    東急東横線「自由が丘駅」 徒歩32分(自転車10分)

    設備

    エアコン、B.T別室、モニター付ドアホン、独立洗面化粧台、照明器具、室内洗濯機置場、エレベーター、温水洗浄便座、システムキッチン、インターネット光、収納スペース、オートロック、宅配ボックス、デザイナーズ、角部屋、駐輪場

    備考

    ※ディンプルキー/ダブルロック
    ※お湯はり機能:有

    概算初期費用
    • 次月総賃料
      185,000円
    • 敷金
      (賃料2ヶ月分)
      356,000円
    • 礼金 -
    • 仲介手数料
      (1.1ヶ月分)
      195,800円
    • 保証会社利用料
      (総賃料の50%~)
      92,500円〜
    • 火災保険料
      20,000円〜
    • ネームプレート代
      7,700円〜
    • 合計額
      約857,000円(+初月日割り総賃料)

    ※上記の数字は概算になりますので、お客様のご事情や物件個別の事由により増減する場合がございます。
    (例:月額費用、ペット飼育、事務所利用、駐車場・駐輪場費用等)