写真は同じマンション別室、似た間取り・内装のものです
募集の部屋の情報・条件等は、物件概要と図面をご確認ください
写真は2階のもの、募集は5階のお部屋のため、バルコニーからの眺望が異なります
※2階のワンルームも募集中!
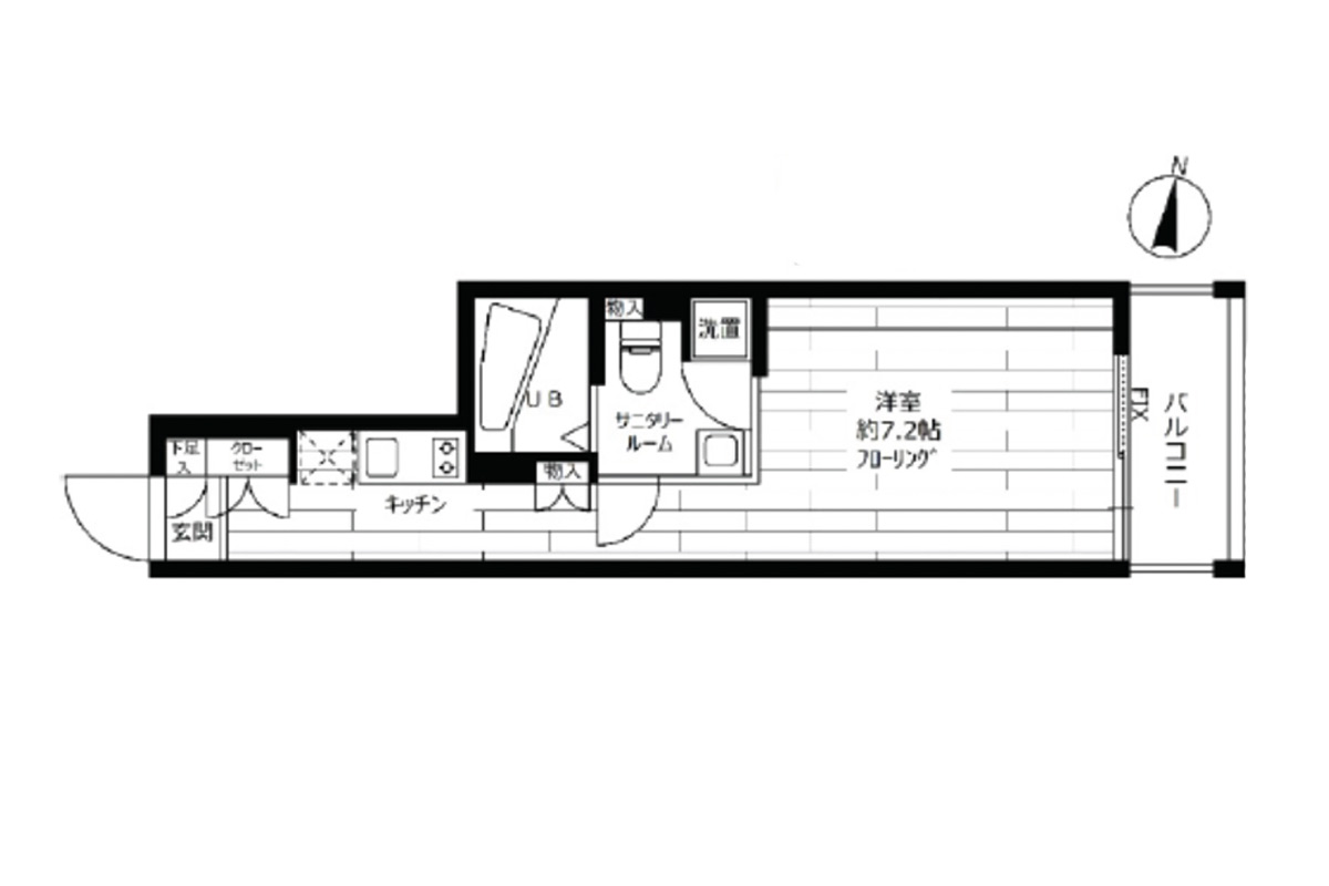
家賃119,000円/共益費5,000円/26.91㎡/間取り図:38枚目
東横線「都立大学駅」徒歩9分、緑道沿いに佇む分譲賃貸マンションのお部屋をご紹介します。
都立大学駅南口を出て中根小通りを少し歩くと突き当たる緑道。
自然を感じながらまっすぐ歩いていくと辿り着く、コンクリートの外壁のマンションです。
ご紹介するお部屋は最上階5階の角部屋、約36㎡のワンルーム。
居室の壁は片面がコンクリート打ちっぱなし、向かい側の壁は白いタイル。
2種類の異なる質感を楽しめます。
ステンレス製のキッチンには縦型の2口ガスコンロがセット。
引き出し収納の他に背面にも2箇所収納があり便利そう!
作業台もゆとりがあるのでキッチン用品を置いたり、スツールを置いて簡単な食事スペースにしても良いかもしれません。
サニタリールームの奥は磨りガラス仕様。
ロールスクリーンで日差しを防ぐこともできます。
バスルームには台形のようなちょっと珍しい形の浴槽が。
浴室乾燥機、追い焚き完備でコンパクトながら機能的です。
駅前にはスーパーや飲食店が充実していて交通量もそこそこある都立大学。
そんな賑やかさからは少し離れた落ち着いた場所で心安らぐ暮らし、いかがでしょうか。
──────────────────────────
まずは、ガレージ賃貸(青山物産)と、ゆるくつながりませんか?
是非フォローしてみてください!
──────────────────────────










































_802-29-336x216.jpg)








_802-29-150x150.jpg)




