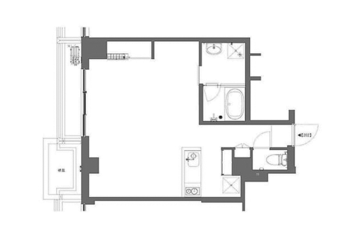
陽ざしたっぷりなワンルーム!部屋全体が正方形に近い形。意外と少ない形です。
部屋の広さは約40㎡あり、1人でゆったりと大空間で過ごしたい方におすすめです!
物件はバスがとっても便利なエリア、世田谷区深沢に隣接した世田谷区等々力。
最寄りのバス停は4箇所。桜新町駅・自由が丘駅・等々力駅・渋谷駅・目黒駅からアクセスできます。
乗り換えが面倒だなーという時は、渋谷・目黒からバスで1本で帰宅もできます◎
一番本数が多いのは自由が丘駅行のバスでしょうか。
自由が丘駅行きのバスはピーク時に1時間に13本。5分に1本くる便利さで、徒歩込みで渋谷駅まで26~35分ほど!
横浜まで40分、新宿や品川までも46-47分。ドアtoドア1時間以内は目指せるでしょうか。
バス利用と聞いて後退りしてしまいそうですが、思っているよりも便利でしょう?
バス利用は…となる方にも一度訪れてみていただきたいです。
また駅距離があるからと言って不便ではありません。
スーパーサミットは歩いて3分、ドラックストアは徒歩2分、コンビニもすぐ目の前の立地◎◎
目黒通り沿いには大きなスーパーが2店舗。駐車場完備のスーパーで品揃えも豊富です。
駅からの距離はあっても便利な立地で、閑静な住宅街に惹かれる方もいるでしょう。
また駒沢公園は歩いて15分(自転車5分)の距離!
気候の良い季節はお散歩にも良い距離ではないでしょうか。
休日はぷらーっと駒沢公園通りのお店に寄り道をして珈琲や軽食を片手に駒沢公園へ。
駒沢公園には、サイクリングコース・ジョギングコースもあり身体を動かすことが趣味の方にはぴったり。
室内はもちろん、立地・周辺環境も大事なポイント!
室内は約40㎡のワンルーム!
大体17~18帖くらいでしょうか。正方形に近い形で、奥行きも幅もあり、空間を広く感じやすい形。家具配置もしやすいことがメリット◎
部屋は西向きで陽ざしたっぷり!部屋の奥まで日が差し込みます。
陽当たり重視の方にはきっとご満足いただける陽当たりです。
そしてキッチンも実用性重視な形。2口IHコンロで、作業スペースも十分。
カウンターキッチンで背面に造り付けの棚が完備で、収納充実◎
自炊派におすすめなキッチンです!
浴室乾燥の設備はありませんが、この陽当たりなら不要かも…
追い炊き・ウォシュレットは揃っています。
ワンルームでゆったりと過ごしたい方、駒沢公園へアクセス良い立地・周辺環境重視の方におすすめです!
これは争奪戦の予感がします…!
気になる方はお早めにお問い合わせください!
※駐輪場:地下階にあり(住戸ごとに指定の区画、1住戸1台まで)
※ペット/事務所/楽器/子ども:不可
同じマンション、他のお部屋もご紹介中!(募集終了も含む)
長く長く続く
50㎡のワンルームで暮らす
晴れ惚れルーフバルコニー
駒沢公園好きへ捧ぐ、等々力暮らし
──────────────────────────
まずは、ガレージ賃貸(青山物産)と、ゆるくつながりませんか?
是非フォローしてみてください!
──────────────────────────


































































