申込あり、内見・申込はご相談ください
祐天寺駅から徒歩5分、駅近好立地のデザイナーズマンション!
コンクリートとレッドカラーがアクセントのお部屋をご紹介します。
住まいとして根強い人気を誇る東横線沿線。
祐天寺からは渋谷へ3駅最速6分と、都心へアクセスしやすい場所。
自由が丘、武蔵小杉、横浜方面へも乗り換えなしで行くことができます。
また物件徒歩1分のバス停を利用すれば三軒茶屋、目黒方面へと行動範囲が広がります◎
駅周辺や物件の近くにはスーパーや飲食店、郵便局などがひととおり揃っており、日々の生活に困ることはなさそうです。
祐天寺駅からは賑わいのある商店街や住宅地を歩いていき、駒沢通りに出る手前あたりへ。
コンクリートの外壁に赤い窓の柵が特徴的なデザイナーズマンションが今回ご紹介する物件。
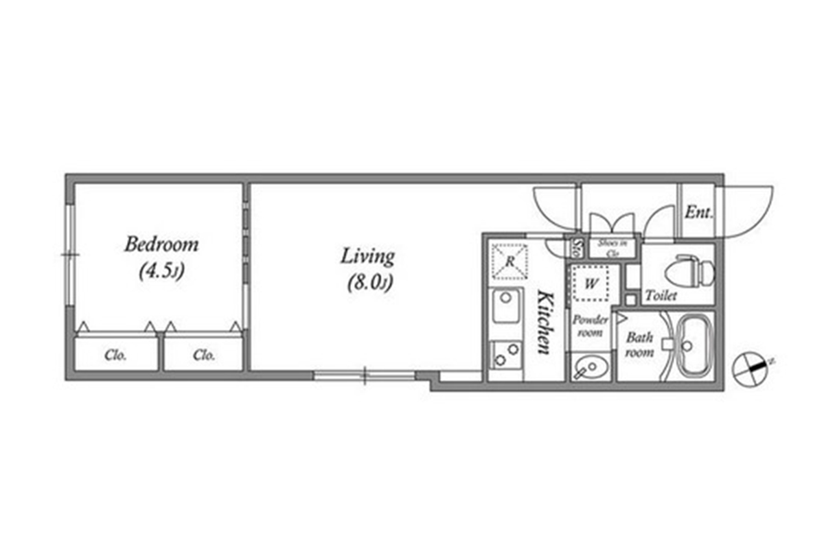
お部屋は8帖のリビングと4.5帖の洋室からなる約36㎡の1LDKタイプ。
居室の間に扉は無く、コンクリートの仕切りでゆるやかに空間が分けられています。
奥の洋室は1階のお部屋ながらも南西向きで陽当たり良好◎
リビングにも外からの光が届き、コンクリートの無機質な質感をやわらげてくれます。
バルコニーはかなりコンパクト。
通りに面しているため人や車の通行量はそこそこある点はご注意を。
クローゼットはポールの付いた同タイプが二つ並びしっかりとした容量があります。
お二人暮らしであれば左右それぞれ、専用クローゼットにすることが出来ますね。
収納扉やキッチン、赤をアクセントに引き締まった印象のあるお部屋になっています。
人気の東横線沿線で光をまとうデザイナーズ暮らし。
気になりましたらお気軽にお問い合わせください!
※敷金・礼金ゼロ!
※フリーレント1ヶ月
──────────────────────────
まずは、ガレージ賃貸(青山物産)と、ゆるくつながりませんか?
是非フォローしてみてください!
──────────────────────────
















































_109-2-336x216.jpg)












