申込あり、内見・申込はご相談ください
断捨離ブームはもはや定番化して、本当に必要なものを吟味した「ミニマリズム」が最近のトレンドでしょうか。
そうはいっても好きなものが多いほど、コレクションや愛着のあるアイテムだって増えるもの。
そんなあなたにおすすめなヴィンテージ・ワンルームをご紹介します。
トレンドの中心として賑やかな原宿と隣り合わせにありながら、どこか大人びた風格を感じる千駄ケ谷エリア。
ヴィンテージと呼ばれるような、古きよき趣ある建物もまだまだ健在で、ふらりと歩いているだけでも印象に残る出会いがある街です。
今回ご紹介するのは、ヴィンテージマンションの代名詞・秀和シリーズの一室です。
青い瓦屋根に白いスタッコ壁に水紋のような幾何学模様の床タイル。
レンガの門柱とロートアイアンのゲートなど、秀和の特徴を色濃く残した共用部は何度見ても心躍るもの。
ゆるやかなカーブを描く階段の昇り降りにも風情が感じられます。
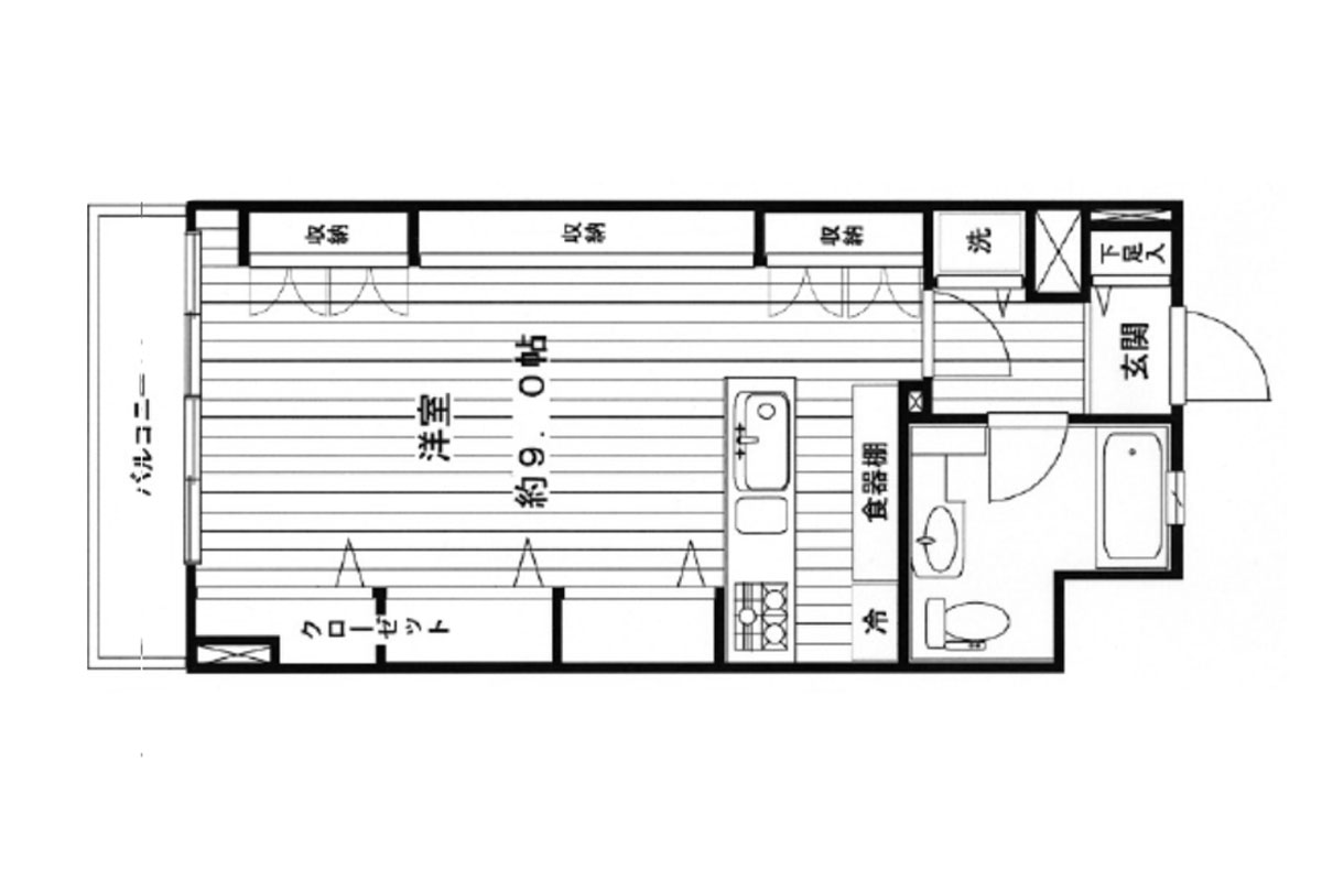
お部屋は3階、約40㎡のワンルーム。
圧巻なのは、お部屋を包み込むような両サイドの収納充実ぶり!!
最近見た中でも指折りの収納量!キッチンにだって備え付けパントリー!
収納豊富なワンルームってなかなかありそうでないものです…!
左側は3面クローゼット、右側はテレビボードも兼ねられる引き出し&棚収納!
収納量は引越の際の悩みのタネの上位ですが、これなら悩むことはなさそうです◎
衣類はもちろん、アクセサリーなどの小物類、そのほかコレクション類もすっきり収められるはず!
備え付けの収納をフル活用で、そのぶんフリースペースも広々と使うことができるでしょう。
ビビッドなイエローの水回りはバストイレが一体の空間。
洗面台も広めで収納もゆとりある棚収納付き。
浴室乾燥や追炊き設備はないものの、このちょっとしたレトロさもご愛敬です。
お気に入りに囲まれて暮らす充足感は何ものにも代えがたいはず。
物もちがよくて多趣味なあなたに捧げたい、ヴィンテージルームです。
──────────────────────────
まずは、ガレージ賃貸(青山物産)と、ゆるくつながりませんか?
是非フォローしてみてください!
──────────────────────────












































































