申込キャンセルとなりました!
ローカル線沿い・個性派デザイナーズの一室が新たに募集開始となりました。
今回ご紹介するのはまるでギャラリーや美術館のような、空の青が映えるメゾネット!
最寄り駅の東急池上線「石川台駅」から徒歩3分。
目黒線の大岡山駅からも歩いて10分少々と行き先によって使い分けができるのも便利!
中原街道沿い、水平垂直のルーバーが特徴的なデザイナーズマンション。
エントランスの中庭を挟み、南側のS棟と北側のN棟から成っています。それぞれ2組の建築家によってデザインされ、間取りはいずれも個性的!
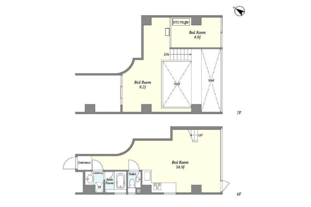
お部屋は最上階の角部屋、6-7階のメゾネット。
天高は5メートル以上は優にあるでしょうか…!
全窓はブラインド付きでお好みの光量に調節OK!
大きな窓いっぱいに広がる青空、上部から降り注ぐ光。
室内を構成するカラーはブルー・ホワイト・グレーという潔さ。
取材時は快晴でしたが、天候によってお部屋の表情がガラッと変わるのも醍醐味かもしれません。
下階の窓際はフロアから一段高いステージのようなスペースになっていて、インナーテラス感覚で使えそう!
植物たちを並べても、自然光を受けてすくすく育ちそうです◎
階段を上ると、吹き抜けが開放的なコンクリートフロアの上階。
大通りと反対側に設けられたバルコニースペースは、頭上に空が広がり、ほっと休息できる空間になりそう。
注意点として窓側は街道沿いのため、走行音など音の聞こえ方は内見時にご確認ください。
ベッド配置や収納など、少々工夫は必要なため、住む人を選ぶお部屋であることも事実…!
ですが、補って余りあるこの眺めと開放感はなかなかに得難いものです。
一度はこんなお部屋に住んでみるのもいいなあ、と思わず惹かれてしまうはず!
ハコの魅力を存分に活かして、非日常的な生活空間を楽しんでみてはいかがでしょうか。
※写真は原状回復前の状態です
──────────────────────────
まずは、ガレージ賃貸(青山物産)と、ゆるくつながりませんか?
是非フォローしてみてください!
──────────────────────────












































































