申込あり、内見・申込はご相談ください
L字窓のあるレトロ物件。陽当たりも良く、しかもペット可!
L字窓の前にキャットタワーを置いたら、きっと猫ちゃんの日向ぼっこ&にゃるそっくスポットに。
物件は田園都市線駒沢大学駅から世田谷線方面へ向かって歩くこと10分。
取材時は大規模修繕中で足場で外観は確認できなかったのですが、少しレトロなアイボリーのタイル張りの外観でしょうか。
大規模修繕で綺麗になるのが楽しみですね。
ゆったりと吹き抜け空間もあって風抜けが良い共用部分でした。
また玄関ドアは凹凸が板チョコレートみたい。短いアプローチですが、アーチの壁もいい味です。
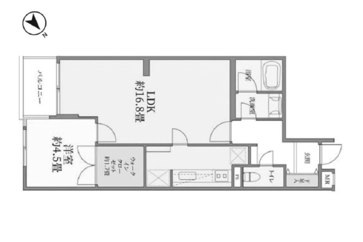
お部屋は52.6㎡の1LDK。
16.8帖のLDは奥行き深い形で中央に柱があるので、ここで区切ると2DKのように使うこともできる間取りです。
普通にリビングダイニングとして使う場合も、ダイニング・リビングが一体の空間ではない分、ご飯を食べる時間・寛ぐ時間とメリハリをつけて暮らせそうです。
室内・設備はレトロさも残るものの、ルーバー扉や建具デザインなどむしろこのレトロなデザイン性に惹かれる方も多いはず。
爽やかなブルーで統一された建具の色合いも雰囲気にぴったり!
冒頭にも述べたL字窓は洋室にあります。
L字の窓はたっぷり陽の光を取り込んでくれ、南東向きなので優しい陽の光で目覚められそう。
またこの部屋には1.7帖のウォークインクローゼット付き。
ハンガーパイプは付いていないのですが、もはや個室のような広さがあり、ハンガーラックの数やケースの数を自在に調整して自分に合った収納の量・種類にできます。
爽やかブルーの建具とL字窓のレトロ物件。
小型犬か猫1匹まで可能でペットもOK!
条件に合う方がいらっしゃいましたら、お早めにお声がけください!
※大規模修繕工事中(~12/26までを予定)
※賃貸人は、海外居住で税法上の非居住者となります
法人契約の場合は、賃借人が賃料の一部を源泉徴収し、納税する必要があります
──────────────────────────
まずは、ガレージ賃貸(青山物産)と、ゆるくつながりませんか?
是非フォローしてみてください!
──────────────────────────















































































