内見準備中。まもなく内見開始予定です!(2月上旬)
★先行申込はご相談ください
写真は同じマンション別室、同じ間取りのものです
募集の部屋の情報・条件等は、物件概要と図面をご確認ください
写真は3階、募集は4階です
「公園の近くに住みたい」ガレージ賃貸へのお問い合わせ時によくお聞きする要望です。
特にペットと暮らす方はお散歩コースに公園が欲しいですね。ペットを飼っていなくても、散歩・ジョギング・息抜きなど緑・自然を感じられる公園が近いと嬉しい。
今回ご紹介の物件は世田谷公園まで6分!
物件は東横線「祐天寺」と田園都市線「三軒茶屋」の中間エリア、下馬。
それぞれの駅から距離はありますが、日常の買い出しはご安心を。スーパー・ドラックストア・コンビニは徒歩3~5分の距離。
祐天寺への道すがらにもスーパーがあり、帰宅途中にも寄りやすいポイントです〇
またバス停が近く、渋谷・目黒方面へはバスで1本!
今回の撮影も池尻大橋からバスで物件まで向かいました。
そして東京ドーム約1.7倍近くの面積をもつ、世田谷公園はわずか6分の距離。
公園の中心には大きな噴水があり、広い園内は新緑から紅葉まで楽しめ、自然豊かで森林浴・散歩にもピッタリ。
週末にはフードトラックが来たり、フリーマーケットが開催されたり、まさに地域の憩いスポットです。
公園横の三宿通りにはペットと入れるカフェやレストランもあります◎
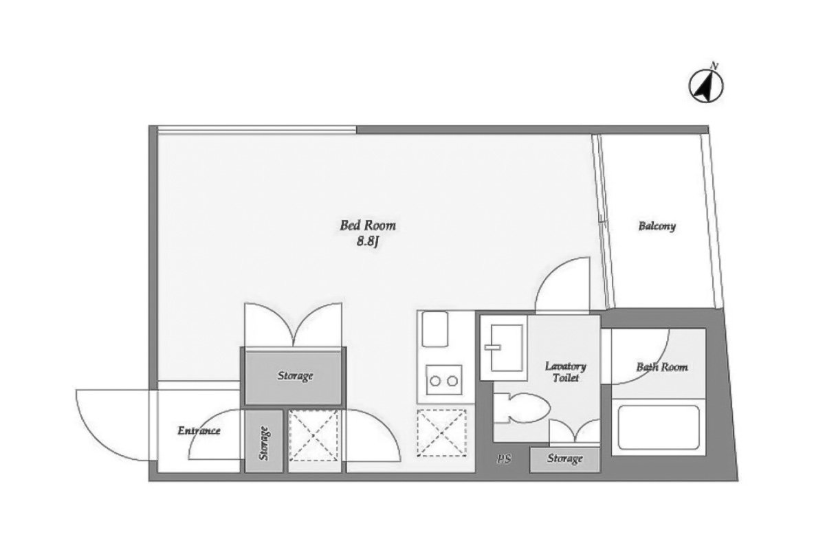
お部屋は4階、8.8帖のワンルーム。
大きな窓のある2面採光が特徴的で、北・東向きですがとても明るい空間でした。
玄関・居室・洗面所それぞれに大きな収納も備え付け。
キッチンはややコンパクトなので、平日は外食や簡単な調理で済ませ、週末は自炊派という方にはちょうどよいサイズでしょうか。
キッチン奥には洗濯機置き場も。ロールスクリーンカーテンが取り付けられる予定です。
ワンちゃんが居れば毎日のように世田谷公園へ。
ペットが居なくても週末に世田谷公園へ、自転車で三軒茶屋・祐天寺方面でお出かけも。
アクティブに暮らす方へおすすめのお部屋です。
※同じマンション他のお部屋もご紹介しております(募集終了も含む)
世田谷公園へ!下馬デザイナーズ
──────────────────────────
まずは、ガレージ賃貸(青山物産)と、ゆるくつながりませんか?
是非フォローしてみてください!
──────────────────────────
































































