6路線4駅利用可能で、目黒川までは歩いて2分。
行先に応じて路線を使い分け、ちょっとした息抜きもすぐ近くで、利便性良い立地。
事務所・SOHO利用可能です◎
最寄駅は目黒線不動前駅。
他には目黒、五反田、大崎広小路も利用可能で、山手線、南北線、三田線、都営浅草線、池上線などが徒歩圏で利用できます◎
さらにすぐ近くにバス停もあり、渋谷アクセスも◎
渋谷行き以外にも、大井町・大崎駅西口行き、経由地として中目黒・不動前がありますので、バス利用で東横線や大井町線も利用できます!
今回は渋谷行きバスを利用して取材に向かいました。本数も多くて便利でした◎
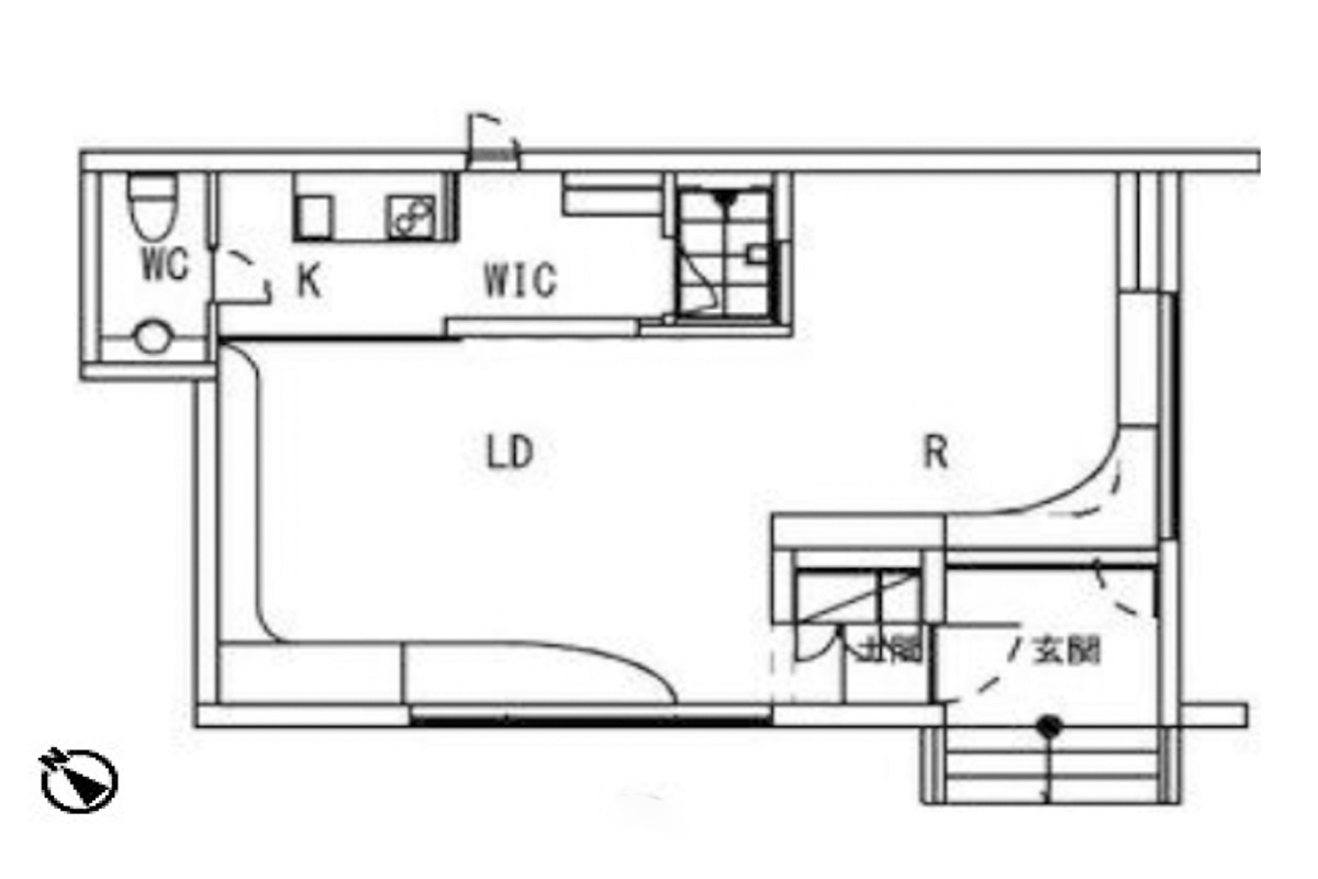
募集のお部屋は1階のワンルーム。
図面の時点で面白いのですが、部屋の辺という辺、角という角にカウンターが設けられ、カウンターも柔らかな曲線の形状になっています。
コンクリート打ち放しの天井、グレーのアクセントクロスとドアといった武骨な雰囲気を、曲線のカウンターが絶妙に雰囲気を和らげてくれているのでしょう。
これだけのカウンター・棚があるので、何に使おうかとなりますね。
住居なら一角はコレクションを飾る棚にしてみても良いかも。事務所・SOHOなら2~3人で利用して、それぞれ大きな作業カウンターに!使い方の妄想が広がる造りです。
お手洗い・キッチン・WIC・シャワールームは大きなグレーの扉に隠されており、なんともスタイリッシュに生活感を隠せる仕様です。
お手洗いにはしっかりとした洗面台付きで、キッチンもミニキッチンではなくグリル付きの調理もできるしっかりとしたタイプなので、一見事務所・SOHO使いになってしまいそうな物件ですが、住居としても十分使えそうな仕様です。
ただ浴槽はなくシャワー室で、洗濯機置き場がないのでご注意下さい。(コインランドリー必須…!)
※洗濯機置き場:無し
※店舗は不可
※同じマンション他のお部屋もご紹介しております
1階/1R/約36㎡:木洩れ日の中で|事務所/SOHO
4階/1LDK/約45㎡:たっぷりの陽ざしの中で|事務所/SOHO/角部屋
──────────────────────────
まずは、ガレージ賃貸(青山物産)と、ゆるくつながりませんか?
是非フォローしてみてください!
──────────────────────────






















































