申込あり、内見・申込はご相談ください
駅近ながらにのどかで落ち着いたエリアに佇むデザイナーズ物件のご紹介。
ワンルームに募集がかかりました。
最寄り駅は大井町線上野毛駅。
駅正面口に降り立つと、まず目に飛び込んでくるのは、屋根の中央にぽっかりとくりぬかれた空。特徴的な駅舎は建築家の安藤忠雄氏による設計、この存在感はまさに上野毛のシンボルです。
日本・東洋の古美術を中心としたコレクションや、季節の花々を楽しむことができる庭園も見ごたえのある五島美術館もすぐ近く。
文化施設や自然を身近に感じることができ、利便性とのどかさのバランスがよい街です。
物件は駅から約4分。上野毛通り沿いにオオゼキがあり、ここで買い物してから帰宅しても無駄のないルートです。
また物件自体は等々力通りに面していますが、エントランスは等々力通りから1本中に入ったところ。
等々力渓谷まで続く小川沿いにマンションエントランスへのアプローチが設けられており、グッとプライベートな雰囲気が強くなります。
建物はくの字に配置され、ちょっとした中庭空間も◎
共用部も気持ちよく風が抜けてくれますね。
ちなみに等々力通り沿いからは駐車場・駐輪場を抜けて入ることもできます(ポストはエントランス側にのみあります)
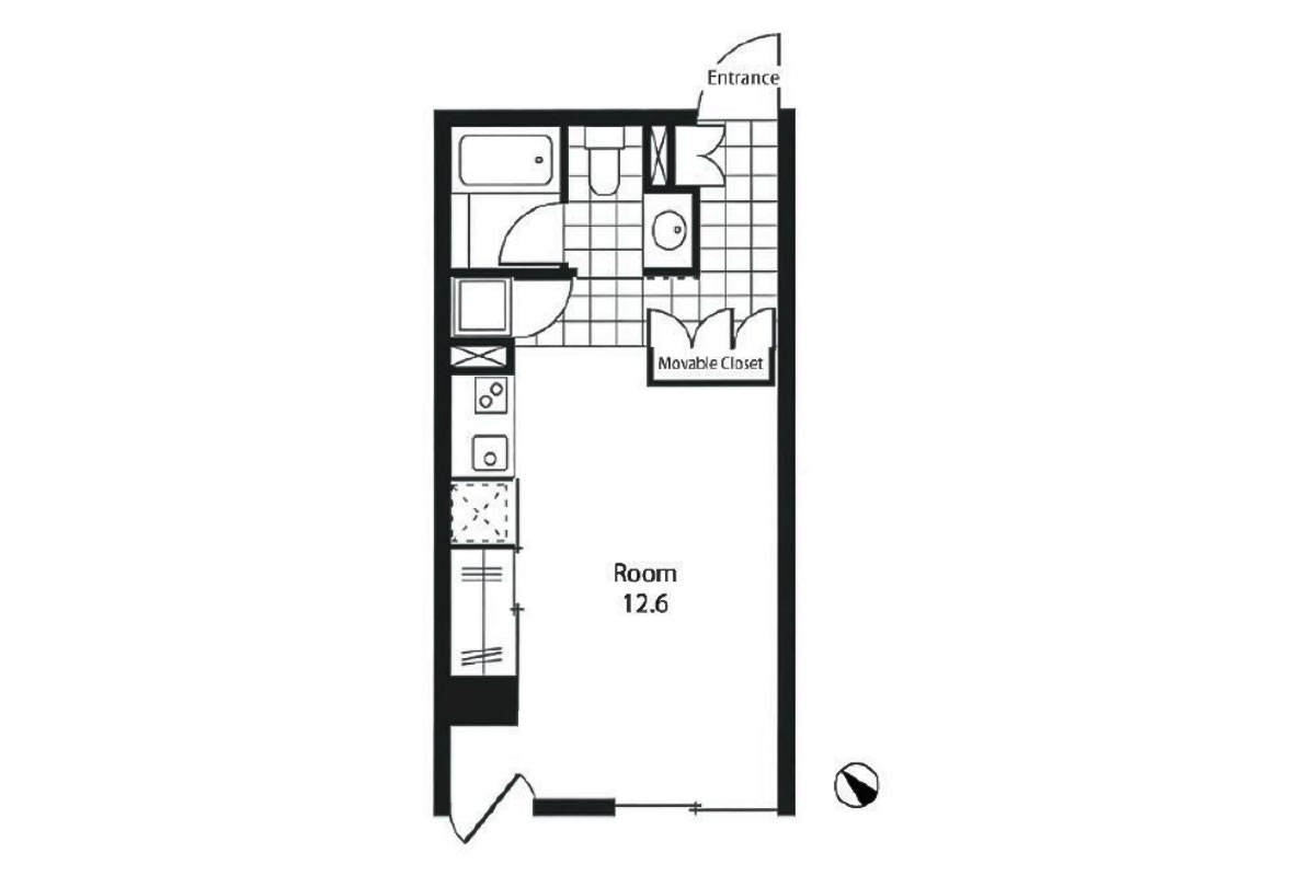
写真のお部屋は2階の角部屋、12.6帖のワンルーム。
玄関からお部屋までタイル床の土間、それから木目フローリングの居室へと変わります。段差はなく床材で空間を分けています。
空間はいったてシンプル。
壁一面にキッチン、洗濯機置き場、クローゼットが並び、凹凸の少ない造りです。
クローゼット以外にも可動式の収納棚があり収納豊富。
片側の壁沿いに配置してもよし、間取り図のように玄関に向かって配置してもよし、はたまた室内での区切りに使っても良さそう。
どの部屋も南西向きで、陽差しを遮るものは少なく、さんさんと陽の光が降り注ぎます!
窓の外は等々力通りに面していますが、車通りは非常に少ない印象。
心置きなく大きな窓を開け放って、気候の良い季節は風を通し、日光を取り込んで暮らすイメージができました。
文化施設や自然を身近に感じることができ、利便性とのどかさのバランスがよい街での1人暮らしにいかがでしょうか。
──────────────────────────
まずは、ガレージ賃貸(青山物産)と、ゆるくつながりませんか?
是非フォローしてみてください!
──────────────────────────








































































