申込あり、内見・申込はご相談ください
写真は同じマンション別室、左右反転の間取り・似た内装のものです
募集の部屋の情報・条件等は、物件概要と図面をご確認ください
写真は5階、3面採光方角が東・南・西のもの、募集は4階、3面採光方角が東・北・西です
バルコニーの方角は同じ(西向き)
3面採光の広々ワンルーム!風抜け良好で、ペット飼育可!
ペットは小型犬1匹、猫なら2匹まで可能!
ペットを暮らせて、広く自由度の高い空間をお探しの方におすすめです。
物件は都立大学駅と大岡山駅の中間エリア。
どちらの駅に歩いても10分前後の距離で、渋谷や新宿エリアには東横線、目黒や麻布、三田方面には目黒線と使い分けが可能です。
通勤・お出かけにフットワーク軽くなれそう。
物件から歩いて3分の距離には中根公園、「呑川緑道」もすぐ近く!春には桜を楽しみながら散歩が愉しめます◎
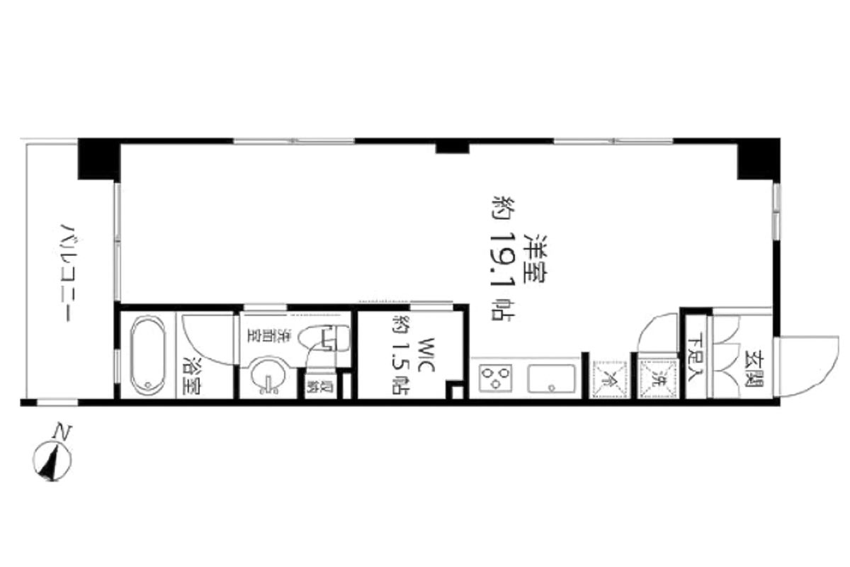
お部屋は4階、東・北・西向きの3方向に窓がある19.1帖のワンルーム!
3面採光はなかなかお目にかかれない形でしょう。
バルコニーは西向きなので、午後からたっぷりと陽が差し込みます。
20帖近くあるワンルームは、家具配置で自由に仕切る OR 大きな空間で使いたい方におすすめです。
キッチン側にはダイニングテーブルを置き、バルコニー側にはベッドやソファが配置できそう。
仕切る場合もせっかくの東西に風が抜ける窓の配置なので、背の高い家具よりは視線を隠す程度の高さの家具・背面のないシェルフ等がおすすめです。
1.5帖の奥行き深めのウォークインクローゼットも付いています。
ペットと暮らすなら、ドア付きの収納空間は安心感がありますね。
なかなかお目にかかれない20帖近くあるワンルーム、小型犬1匹もしくは猫ちゃん2匹まで可能もポイント◎
ペット可や猫2匹可能な部屋をお探しの方におすすめの物件です。
※敷金・礼金ゼロ
※フリーレント1ヶ月(賃料のみ)
→適用条件は要確認
※2人入居:可
※ペット可:+敷金1ヶ月
→小型犬1匹 または 猫2匹まで
──────────────────────────
まずは、ガレージ賃貸(青山物産)と、ゆるくつながりませんか?
是非フォローしてみてください!
──────────────────────────













































































