申込あり、内見・申込はご相談ください
三軒茶屋エリアの住みよい2LDK!
分譲マンションの一室をご紹介します。
物件の場所は三軒茶屋駅から世田谷線方面に歩いて8分ほど。
三軒茶屋駅のお隣、世田谷線の西太子堂駅は徒歩2分とすぐの距離。
また表通りのアーケード街、世田谷通りには飲食店を中心に様々な商店が立ち並び、活気のある街並みが広がります。
通りの裏手、246に囲われた通称「三角地帯」は情緒ある昔ながらの飲み屋がひしめき合うディープなスポット!
つい寄り道をして帰りたくなってしまいそうです。
ご紹介する物件は世田谷区若林の住宅街に佇む、分譲マンション。
エントランスにはオートロックや宅配ボックスなどの設備に、ソファーのある広々としたロビーがお出迎え。
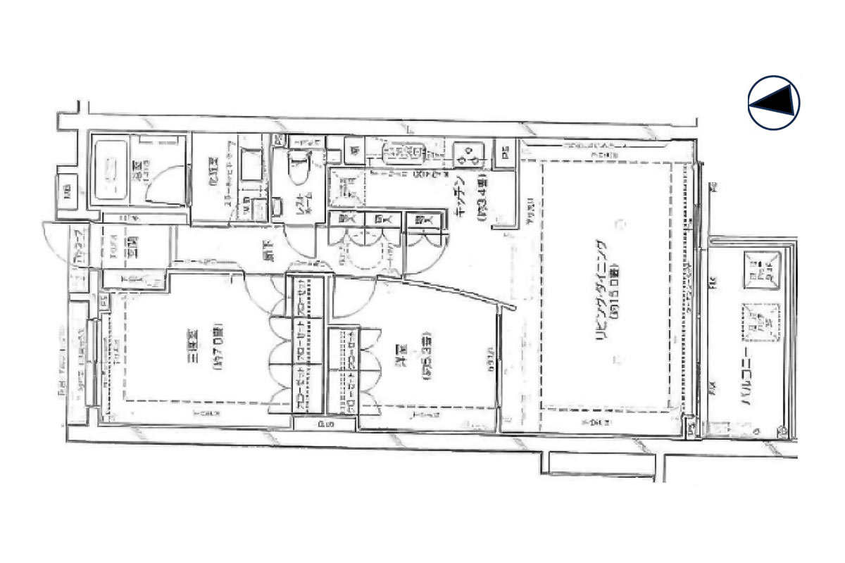
募集中のお部屋は4階、約70㎡の2LDK。
約15帖のリビングには南向きのバルコニーが付いていて明るさたっぷり◎
日中通して心地の良い時間を過ごせそうです。
キッチンにはカウンターがあって収納も豊富、さらにはオーブンレンジや食洗機付き!
コンロはグリル付きの3口ガスタイプで自炊派の方に重宝する機能が備わっています。
リビングに隣接した洋室は約5.3帖。
廊下側とリビング側の2箇所にドアがあり、回遊できる作りになっています。
もう一部屋は玄関側に約7帖の洋室。
どちらもクローゼットがありライフスタイルによって使い分けしやすい間取り。
また、廊下に2箇所の収納スペースもあり頼もしい収納量があります。
グルメを中心に、都心へのアクセスも良く利便性の整った三軒茶屋。
長く暮らす街をお探しの方にもぜひおすすめしたい物件です。
──────────────────────────
まずは、ガレージ賃貸(青山物産)と、ゆるくつながりませんか?
是非フォローしてみてください!
──────────────────────────















































































