憧れスタイリッシュルームで新生活@学芸大!
住みながら街の魅力も存分に満喫できそうなお部屋をご紹介します。
場所は東急東横線「学芸大学駅」から徒歩4分とうれしい駅チカ!
駅の西口・東口側のいずれも商店街が広がっており、日々の買い物や食事の選択肢が充実しています。
最近では高架下のリニューアルによって新スポットも続々!さらにエリアの魅力が増していますね。
東口商店街から鷹番通りへと抜けていくとあっという間に物件に到着。
都心へのアクセスも言わずもがな!急行なら渋谷へ2駅・最短7分の距離感です。
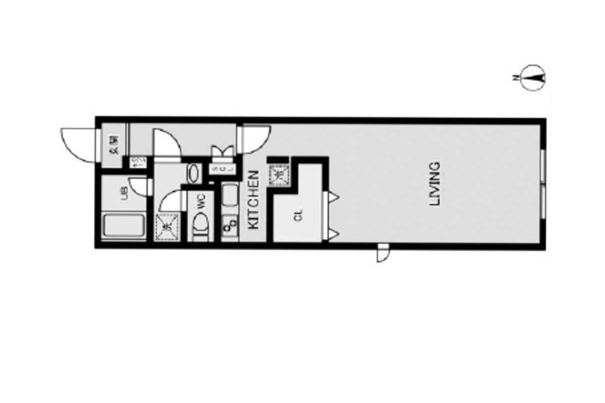
お部屋は3階、約33㎡の1Kタイプ。
コンクリ壁がスタイリッシュな居室は9~10帖程度はあるでしょうか。
収納はボリューミーなウォークインクローゼット!
壁面にはポスター類やホームシアター用のスクリーンなどを吊り下げ可能なフック付き。
質感を活かしたインテリアにひと役買ってくれそうです。
キッチンスペースはややコンパクトながら2口付きで自炊派にも安心です◎
南向きの窓から陽が差し込み、陽当たりも期待できそう◎
バルコニーなしのお部屋のため、室内物干しも付いています。
お洗濯の際は浴室乾燥もあわせて活用OK!
車道に面しているため、走行音等は内見時のご確認をお勧めします。
学大&駅チカという最強立地なこのお部屋。
住むほどに愛着も湧き、暮らしやすさを実感できそうです。
※エレベーター:無し
──────────────────────────
まずは、ガレージ賃貸(青山物産)と、ゆるくつながりませんか?
是非フォローしてみてください!
──────────────────────────

















































