写真は同じマンション別室、似た間取り・似た内装のものです
募集の部屋の情報・条件等は、物件概要と図面をご確認ください
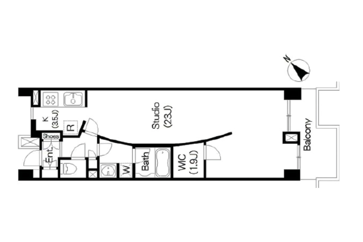
写真は3階・同規模のワンルームのもの
募集は2部屋ございます(物件概要は3階のもの)
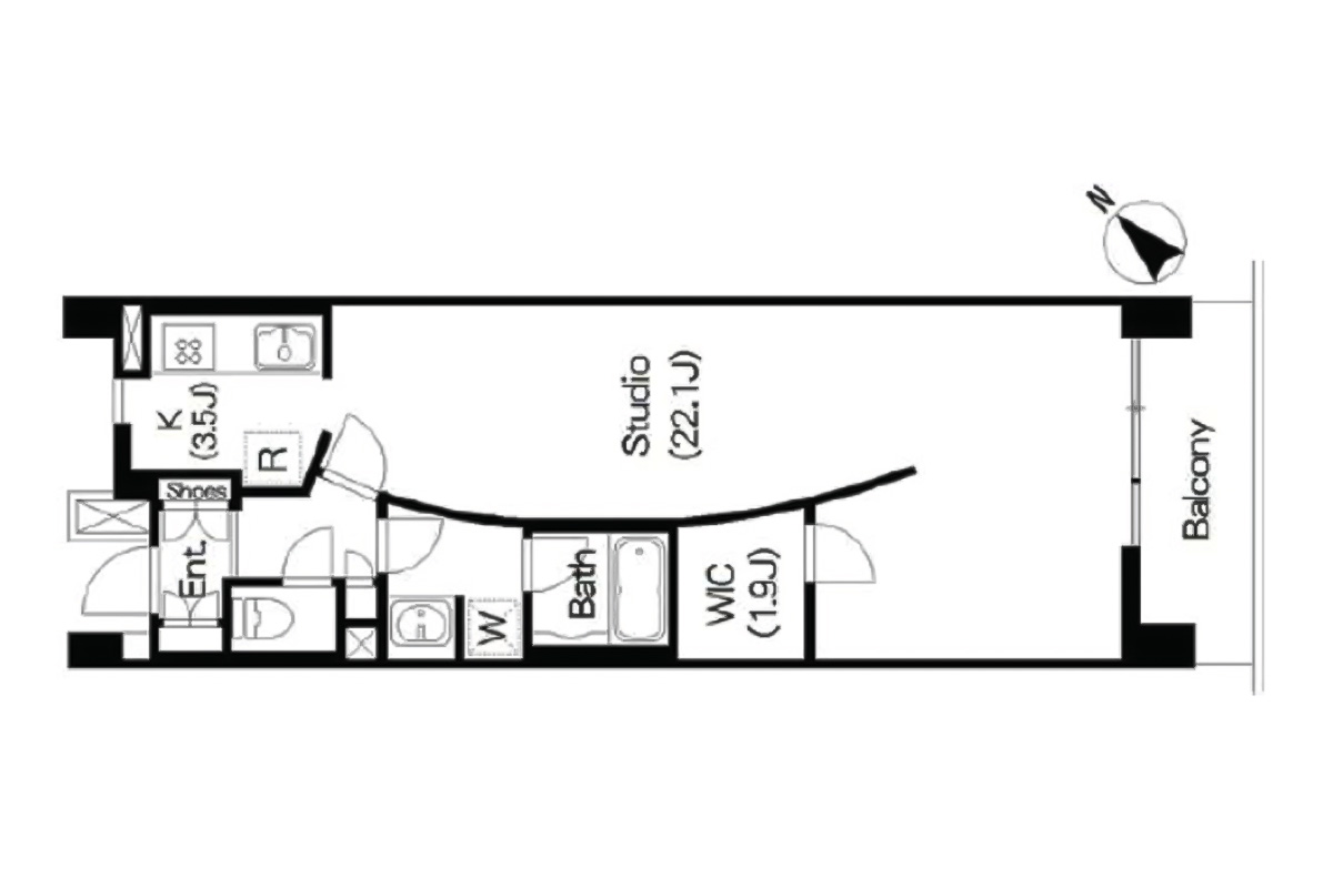
5階:22帖(間取り図49枚目)/家賃+2,000円 →5階の眺望は「三茶 とっておきのルーバルライフ!」
3階:23帖(間取り図48枚目) ★2/28(土)から内見開始予定(先行申込はご相談ください)
三軒茶屋と下北沢の中間地点、淡島通り沿いの物件のご紹介です。
間取りは20帖超えのひろーーいワンルーム!
三軒茶屋駅からはカフェや飲み屋と誘惑の多い茶沢通りを下北沢方面へ直進。
淡島通りと交差する十字路を右に進んだところの、住宅地の一角にあるマンションです。
駅からは少し距離がありますが、道沿いの店舗や街並みを見ながら歩いているとそれほど遠くは感じませんでした。
自転車では6分ほどの距離。駅前の駐輪場を利用してもいいですね。
駅距離を考えると近くにお店はあるか心配になりますが、心配ご無用。
夜1時まで空いているスーパーのサミットは歩いて5分の距離。2階建てで品揃えは十分。
淡島通りとは反対側、池尻方面徒歩10分ほどのところにはオーケーとオオゼキもあり、実は日々のお買い物の選択肢の多い便利なエリアです。
二つの棟からなる当マンション、ご紹介するお部屋は淡島通りから緑の並木道を入った先にあるアイビーテラス棟。
占有面積60㎡超え、間取りは20帖超えの広々ワンルーム!
奥行きのあるメインスペースの先には南東向きのバルコニー。
住宅地で落ち着きがあり、外は敷地の植栽が目線の先に見える爽やかな景観です◎
ベッドスペースとなる奥側には1.9帖のウォークインクローゼット。
ひとり暮らしであればほどよい収納力、お二人だとプラスでストレージがあると良さそうです。
室内、建物共有スペースともに設備も充実◎
気になる点は、細長く奥行きある間取りなので家具の配置に悩みそうなことくらいでしょうか。
三茶と下北の間で、渋谷駅行きのバス停もすぐ近く。
ふらっと出かける先の選択肢がたくさんある立地で、快適な暮らしを送りたい方におすすめのお部屋です。
※写真はクリーニング・原状回復前です
▼同じマンションの同棟・別棟のお部屋もご紹介しております
緑を眺めてⅡ
淡島通りを見渡すⅡ
三茶 とっておきのルーバルライフ!
──────────────────────────
まずは、ガレージ賃貸(青山物産)と、ゆるくつながりませんか?
是非フォローしてみてください!
──────────────────────────




































































