「新たなる価値の創造にこだわり続け、住まう方々に豊かな暮らしへの道を切り拓く」
そんな想いの込められたマンションシリーズの一部屋をご紹介します。
最寄り駅の世田谷線「松陰神社前駅」からは徒歩4分ほどと駅近の好立地。
ローカルな印象のある世田谷線沿線ですが、松陰神社前は商店街やその街並みがメディアに取り上げられることもある隠れた人気エリア。
焼き立ての香りを漂わせるパン屋さんをはじめ、酒屋や八百屋といった昔ながらのお店が現在も営業中!
物件のある北西側は賑やかさは落ち着き、周辺には区役所、税務署、図書館といった公共施設が並んでいます。
すぐ近くの松陰神社・若林公園は一息つける地域の人の憩いのスポット。
駅周辺はお店の充実感がありながら、ローカルな沿線ならではのゆるやかな時間が流れています。
しっかりとした佇まいに木材をあしらったエントランスが洗練された雰囲気のこちらのマンション。
オートロックに宅配ボックス、駐車場・駐輪場・バイク置き場も揃っています。
1階にはドラッグストアが入っていていざという時の味方になってくれそうです。
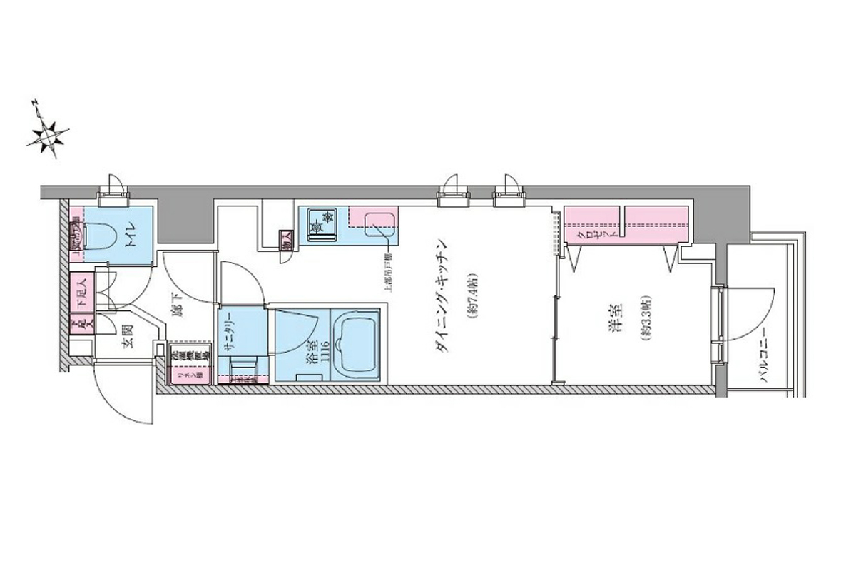
募集中のお部屋は2階の角部屋、約30㎡の1DKタイプ。
7.4帖のダイニングスペースに洋室は3.3帖とコンパクトな間取り。
白を基調とした内装が清潔感を引き立ててくれるお部屋です。
シンプルな間取りですが広さ的に大型家具の配置は難しそうなので、ミニマルに暮らしたい方向け。
居室間の引き戸を全開にすると奥行きが広がって、ダイニングにも東側からの光が入り開放感がグッと増してくれます◎
穏やかな住環境ですっきりとシンプルな暮らしはいかがでしょうか。
──────────────────────────
まずは、ガレージ賃貸(青山物産)と、ゆるくつながりませんか?
是非フォローしてみてください!
──────────────────────────

























































