ゆるやかな時間が流れる街、世田谷区弦巻。
コンクリートとレッドカラーがアクセントのデザイナーズルームをご紹介します。
最寄り駅は青山物産の最寄り駅でもある「桜新町駅」。
春には駅前通りの桜並木のもとで桜まつり、秋には青森県との交流から始まったねぶた祭りが開催されたりと賑わいのあるエリア。
普段はゆるやかな落ち着いた雰囲気ですが、イベント・季節ごとに賑わいある活気のある街並みが広がります。
物件の場所は桜新町駅から北方向へ歩くこと8分ほど。
このエリアには人気のグルメスポットも目白押し。
パン好きがあしげく通うベーカリーや、京都の小川珈琲のラボラトリー、人気ピッツェリアなどトレンド指数の高いお店が立ち並びます。
こちらのマンションはコンクリートやアクセントカラーが特徴的なお部屋を展開するデザイナーズシリーズ。
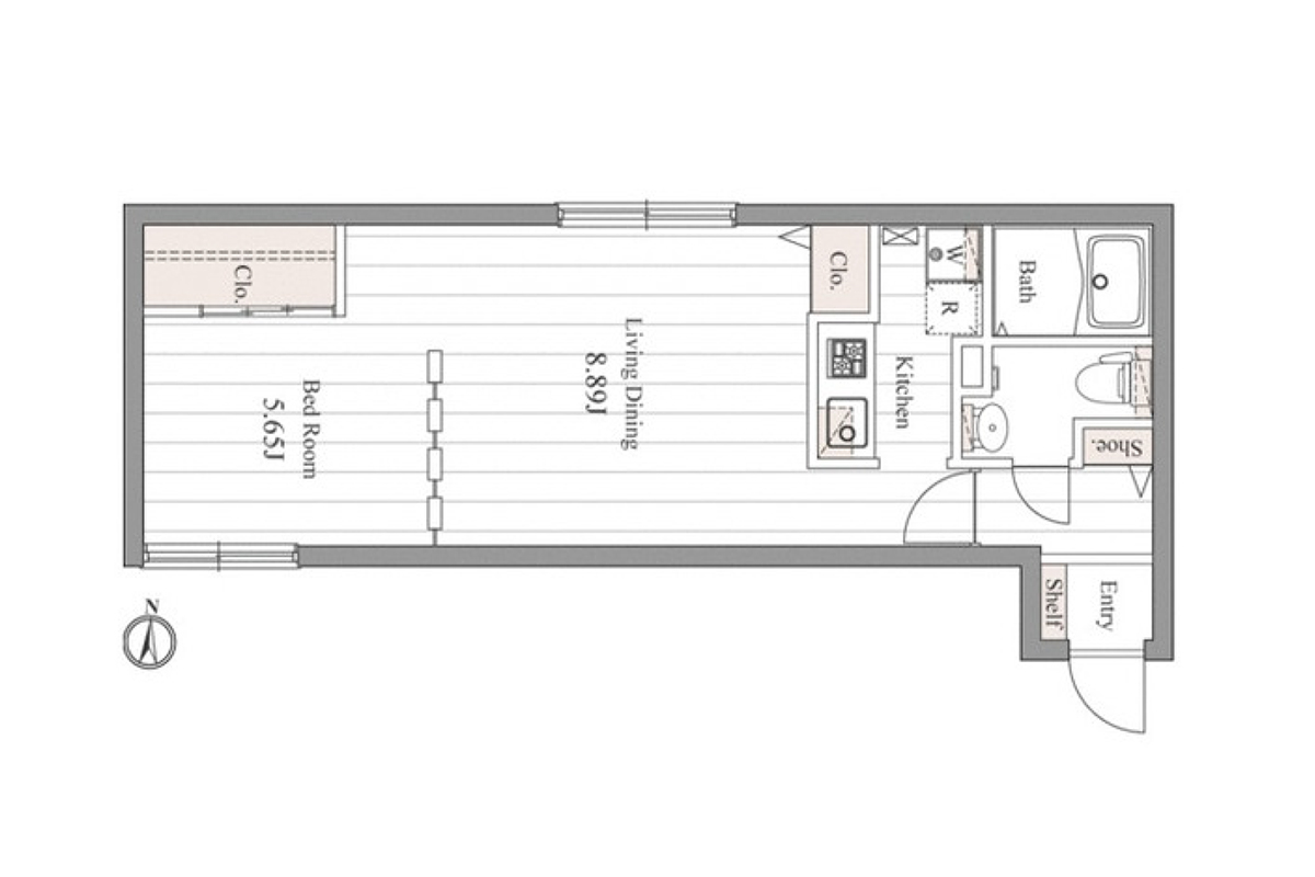
募集中のお部屋は8.89帖のリビングと5.65帖の洋室からなる約40㎡の1LDKタイプ。
1LDKといっても居室の間に扉は無く、コンクリートの仕切りでゆるやかに空間が分けられています。
奥の洋室は1階のお部屋ながらも南向きで陽当たり良好◎
リビングもスモークガラスから光がこぼれ、コンクリートの無機質な質感をやわらげてくれます。
奥の洋室の窓の外はお隣の住戸との共有スペースになっているようなので、使用範囲は要ご確認。
洗濯物は窓際の物干しフックや浴室乾燥機を活用すると良さそうです。
収納は洋室とリビングそれぞれ大小サイズのクローゼット、玄関にはシューズクローゼットが2箇所。
キッチンや水回りは赤をアクセントに、引き締まった印象のあるお部屋になっています。
ゆるやかな空気感漂う街で光をまとうデザイナーズ暮らし。
気になりましたらお気軽にお問い合わせください!
──────────────────────────
まずは、ガレージ賃貸(青山物産)と、ゆるくつながりませんか?
是非フォローしてみてください!
──────────────────────────




























































