写真は同じマンション別階の同じ間取りの似た内装のものです
募集の部屋の情報・条件等は、物件概要と図面をご確認ください
写真は11階、募集のお部屋は6階です
歴史と情緒の残る街・文京区小石川。
閑静な街並みと昔ながら下町情緒が混在した街の雰囲気も魅力です。
駅からほど近く、ふたり暮らしにもちょうどよいお部屋のご紹介。
最寄り駅の「後楽園駅」からは歩いて6分。
富坂下交差点から春日通り沿いにゆるやかに坂を上って向かいます。
2駅4路線利用でき、池袋や新宿などへのアクセスも15分以内でどこに行くにも便利!
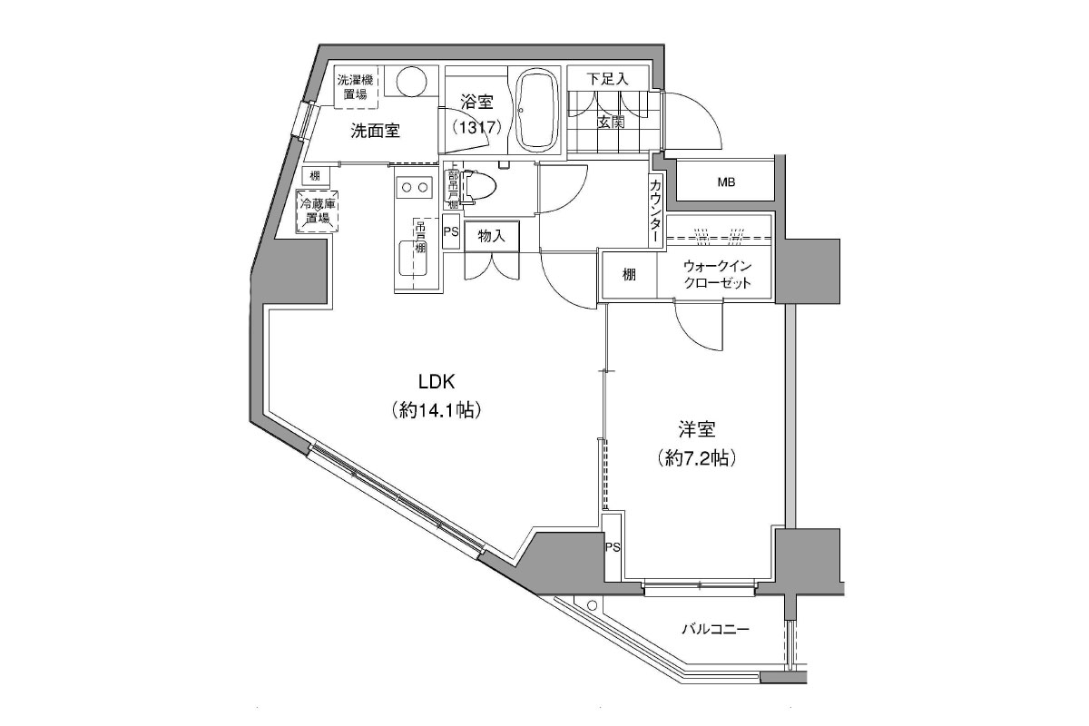
お部屋は11階の角部屋、約50㎡の1LDK。
白基調の内装で明るさが感じられる室内です。
LDKは約14帖、リビングダイニングはキッチンを除いても10帖以上はあるでしょうか。
隣り合う洋室とワンルームのように開放的に使ってもよさそうです。
洋室のウォークインクローゼットはサイドに棚付きで小物類の収納もしやすそう!
キッチン奥の扉の向こうに洗面室&バスルームと水回りスペースがまとまっています。
リビング窓とバルコニーは南西向きで陽当たり良好◎
さすが11階という抜けのよい眺望が広がっています!
高さのおかげで走行音などもあまり気にならない印象でした。
小石川といえば、言わずと知れた桜の名所・播磨坂や小石川植物園、小石川後楽園と緑豊かなスポットも目白押し。
播磨坂の遊歩道にはベンチが設置され、お花見シーズンのみならずゆったりと休日のお散歩を楽しむことができます。
春はもうすぐそこ、新生活を新たな街で迎えてみませんか?
──────────────────────────
まずは、ガレージ賃貸(青山物産)と、ゆるくつながりませんか?
是非フォローしてみてください!
──────────────────────────
































































