SOHOや事務所利用もOK!
エキチカデザイナーズが募集開始となりました!
最寄りの「駒場東大前駅」東口からはなんと徒歩1分!!
晴れの日も雨の日も、駅距離の近さはフットワークを軽くしてくれますね。
ご来客があるオフィス利用も、アクセスはやはり優先条件ではないでしょうか。
渋谷駅までは2駅&3分という立地ながら、東大キャンパスの所在地としてアカデミックな雰囲気も漂っています。
建物の1階はフィットネスジムと貸トランクルームになっています。
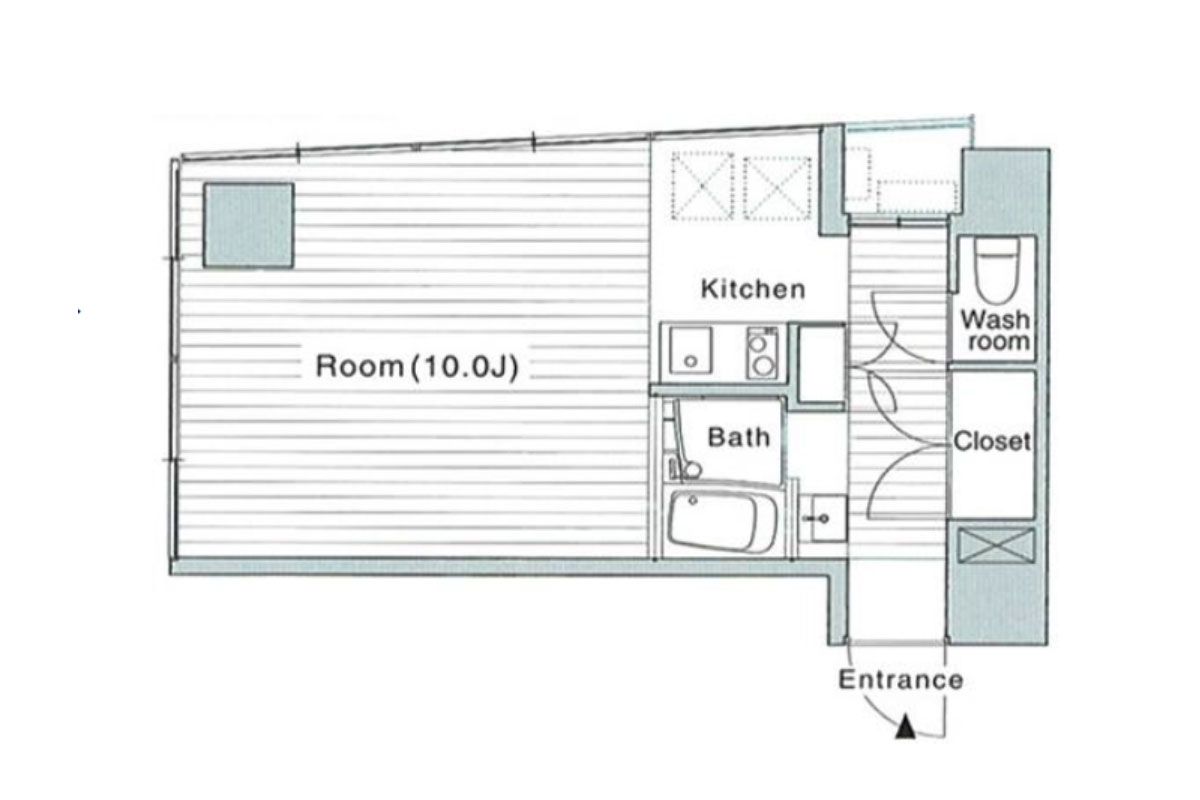
お部屋は4階、約33㎡のぐるりと窓に囲まれたワンルーム。
約10帖の居室は自由度高く家具のレイアウトができそう!
収納は玄関沿いにクローゼット収納がありました。
バスルームとリビングはガラス壁で開放的な仕様!
気になる方はガラスフィルムなどを活用して目隠しするとよさそうです。
バルコニーはありませんが、お洗濯に便利な浴室乾燥付き◎
自転車などがあれば近隣エリアへの移動がさらにスムーズ!
空きは要確認ですが、駐輪場のほかに賃貸では少ないバイク置場も備えています。
注意点として建物裏手が線路沿いのため、踏切音や走行音が多少聞こえてきます。
住まいにもオフィスにもスマートな佇まいのお部屋です。
ご条件が合う方はぜひお問い合わせください!
──────────────────────────
まずは、ガレージ賃貸(青山物産)と、ゆるくつながりませんか?
是非フォローしてみてください!
──────────────────────────



















































