2025年10月リノベーション!!
駅近レトロマンションの一室が募集開始となりました!
物件は京浜東北線・南北線「王子駅」から徒歩3分。
東京さくらトラム(都電荒川線)も含めて3路線利用可能です。
京浜東北線で埼玉・神奈川方面への移動もしやすいほか、「東京駅」や「品川駅」などのターミナル駅も20~30分以内の距離。
ご紹介のお部屋があるのは駅徒歩3分の80年代竣工のレトロマンション。
総戸数100戸超えのビッグコミュニティの一室です。
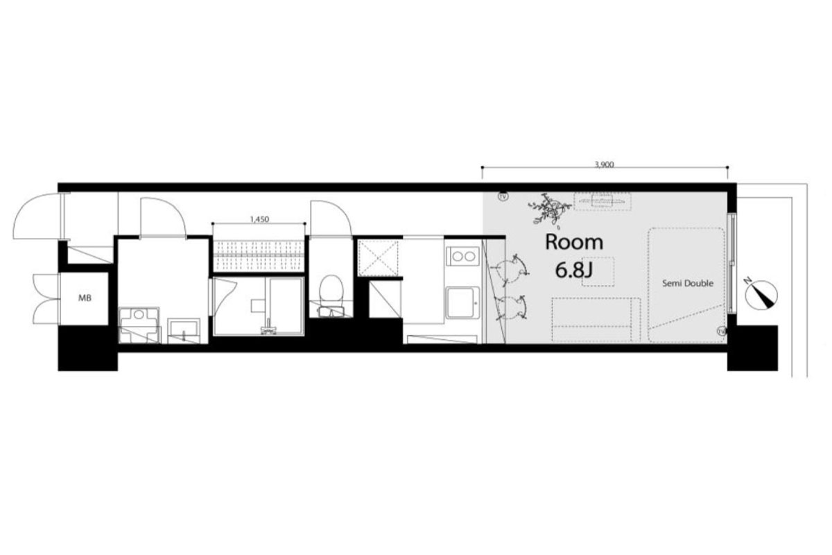
約30㎡のワンルームはリノベーションしたばかり!
入室してすぐに感じるのが心地よい木の薫り!
それもそのはず、廊下と居室は温かみを感じる無垢フローリング仕様!
夏場は素足で過ごすのも心地よさそうです。
カウンターキッチンはサイドと背面に造作棚付き。
パントリーとして調理家電を置いたり、お気に入りの食器を並べたりとレイアウトを考えるのも楽しそう。
収納は廊下沿いにカーテンで目隠しできるオープンラックがありました。
窓は二重サッシ、水回りスペースにゆとりがあるもの好印象でした。
気になる点があるとすれば、バルコニーから隣マンションの玄関側が見えること。
バルコニーにあまり出ないという方には問題なさそうですが、現地でご確認ください。
王子駅東側には飲食店からスーパー、日用品店まで、約90店舗以上ものお店が立ち並ぶ「王子銀座商店街」があり、暮らしやすさもばっちり!
江戸時代から続く桜の名所の「飛鳥山公園」や「音無親水公園」も駅徒歩1分のところにあり、自然豊かなスポットも豊富です。
交通アクセスとのんびりとした雰囲気のいいとこどりでお探しの方におすすめです。
──────────────────────────
まずは、ガレージ賃貸(青山物産)と、ゆるくつながりませんか?
是非フォローしてみてください!
──────────────────────────
























































