立地を重視したい方におすすめ!
田園都市線「池尻大橋駅」駅近・リノベーションされたお部屋をご紹介。
池尻大橋駅は渋谷へのアクセスは言わずもがな、少し足を伸ばせば中目黒や代官山、下北沢とカルチャーを楽しめる街へ行動範囲が広がります。
徒歩圏内で目黒川や世田谷公園も近く、近場に自然を求める方にもおすすめな立地。
池尻大橋を中心に、都内の街々へ繰り出す休日を過ごせそう。
物件は駅の南口を三軒茶屋方面に歩いて4分ほどで到着。
築56年の年季を感じる12階建ての分譲マンションです。
白い塗り壁にゆとりのあるエントランスは、この時代に多く建設されたマンションの特徴のひとつかもしれません。
現在募集中のお部屋は4階角部屋、リノベーションされたばかりのようで室内とても綺麗です◎
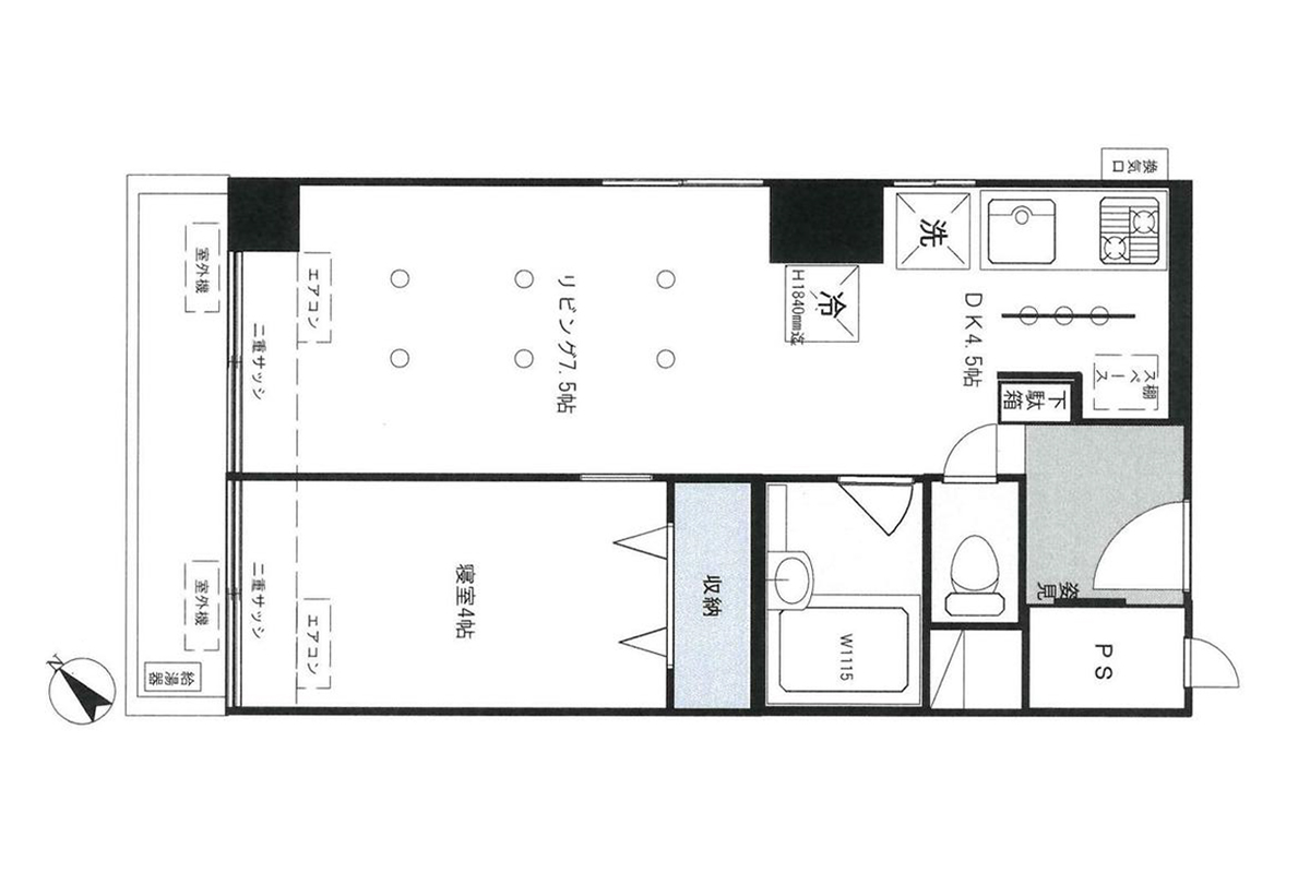
間取りは約35㎡のシンプルな1LDK。
リビングは7.5帖、ダイニングスペースは4.5帖で合わせると実質12帖。
間に隔てる扉は無く、奥行きのある空間になっています。
お隣の寝室は4帖とコンパクト。
ベッドサイズさえおさまれば配置のしやすいシンプルな形をしています。
バルコニーの外は246の高速ビュー。
大通りに面しているため車の走行音などは多少ありますが、2重窓で対策がされています。
洗濯物への影響が気になる場合は浴室乾燥機の活用がおすすめ◎
キッチンはグリル付きの2口ガスコンロ。
池尻はスーパーが充実していて、物件徒歩10分圏内にはライフ、オーケー、オオゼキ、成城石井などがあります!
飲食店が豊富な街ですが、自炊派の方にとっても満足頂ける充実度ではないでしょうか。
都心へのアクセスが良く、住まいとして人気の田園都市線沿線の分譲マンション。
管理がしっかりとされた清潔感のあるヴィンテージマンション暮らし、是非お問い合わせください!
──────────────────────────
まずは、ガレージ賃貸(青山物産)と、ゆるくつながりませんか?
是非フォローしてみてください!
──────────────────────────


























































