申込あり、内見・申込はご相談ください
大きな窓から見えるのは公園・緑道の緑。
心地よく風が抜ける窓辺で、街の中に溶け込みながら暮らすリノベ物件のご紹介。
最寄駅は大井町線・池上線の2路線が立体交差する「旗の台駅」
旗の台駅前には東口・南口にそれぞれ商店街があり、また旗の台~荏原町の駅間にも商店街が続き、荏原町駅からもさらに緑道に沿って商店街が続きます。
長く長く続く商店街には、様々なジャンルの飲食店、青果・鮮魚・精肉・おはぎが有名な精米店など魅力的な個人商店が軒を連ねています。個人商店のみならずスーパーも豊富。旗の台駅前には東急ストア・オオゼキ、長原駅前には道の駅のような地産マルシェもあります。さらに中原街道沿いには大型スーパーのオリンピックもあり、お買い物の選択肢がたくさん…!
駅間の距離が短く、少し歩けば別の街へ移ることができ、商店街を歩きながらどんどん歩いていろんな店を開拓したくなるエリアです。
そして休日の息抜きスポットは地元のオアシス「洗足池公園」。
大きな池をぐるっと周回散策でき、桜・紅葉など四季を感じることができます。
マンションからは歩いて20分ほどの距離。のんびり歩いても良し、電車で2駅乗っても良いですね。
物件は立会川緑道へ繋がる駅前の公園前。
エントランスは路地側ですが、お部屋は公園に面しています。
公園といっても道も兼ねているので、駅へ向かう・駅から家に帰る人の往来も感じられる場所です。
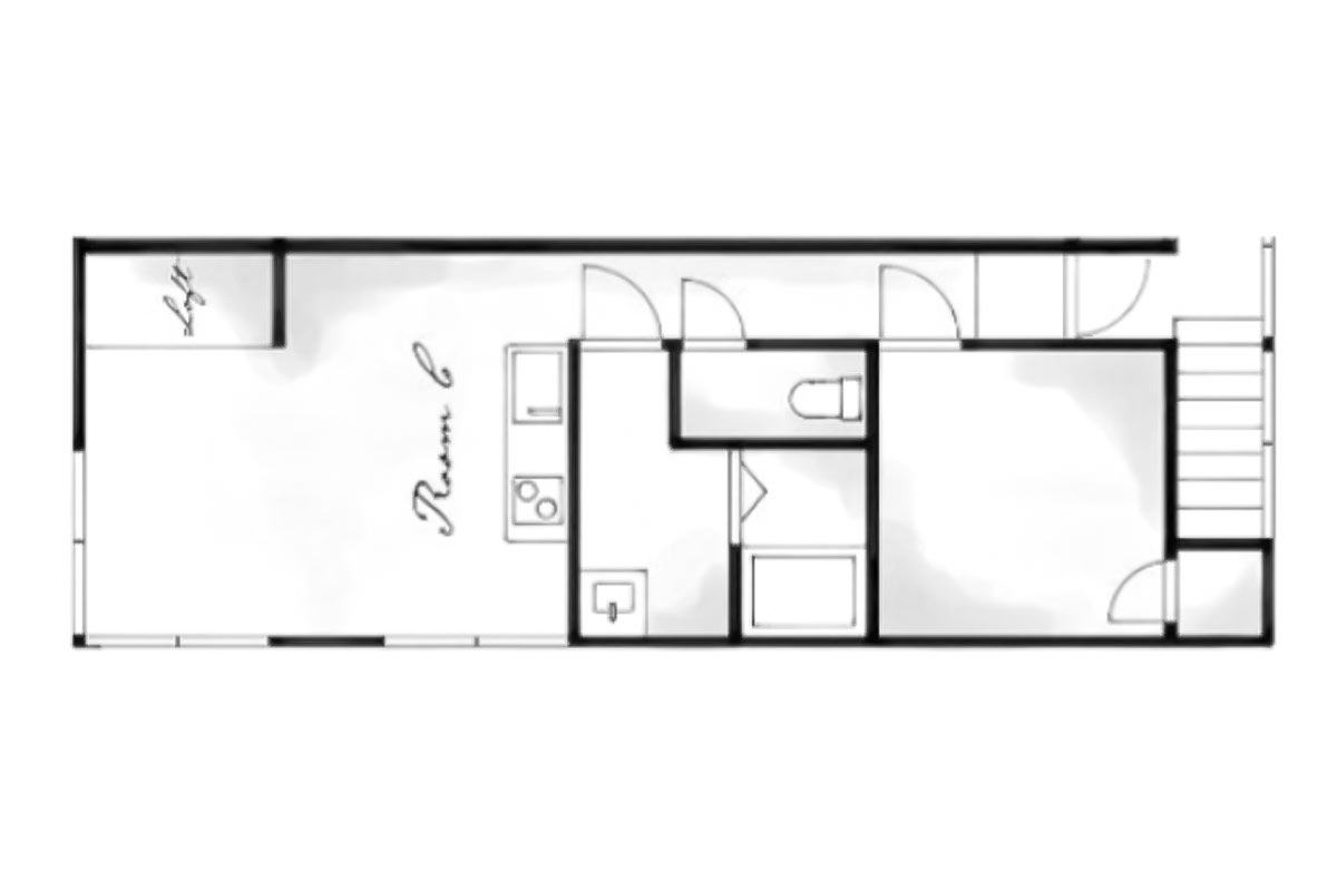
建物丸ごとスケルトンリノベーションされた総戸数4戸の小さなアパートメント。
2階、36.4㎡1LDKのお部屋です。
エントランスから部屋まではやや急な階段を上ります。足元にはご注意ください。
外観や廊下のレトロさからはギャップある室内へ!
天井を抜いて3mほどありそうな天井高あるLDKは10帖ほどの広さ。
2面採光・南向きで、たっぷりと陽が差し込みます。
陽当たり良く、心地よく風が抜ける窓辺はお昼寝スポット・寛ぎスペースに◎
寛ぐ=ソファとなりそうですが、窓が腰高なので、この物件だとクッションやふかふかの座椅子が似合いそう。
上部には1帖くらいのロフト付き。
梯子で登るタイプにはなりますので、あまり使わないものの収納におすすめです。
洋室は一番玄関側に。
4帖くらいの広さで、窓の外は隣の家の壁。時間帯によっては日も入るようですが、取材した夕方は日は入っていませんでした。
落ち着いて眠るならこのくらいの明るさがちょうど良いかもしれません。
キッチンと洗面台はお揃いのミントグリーンのタイル。
リノベーションならではの可愛らしさも詰まっています◎
充実の商店街で暮らしやすさ、どこか懐かしさのある街で、街に溶け込むように暮らす。
ビビっときましたらお問い合わせください!
──────────────────────────
まずは、ガレージ賃貸(青山物産)と、ゆるくつながりませんか?
是非フォローしてみてください!
──────────────────────────

















































































