2月下旬内見開始予定!
★先行申込もお気軽にご相談ください!
リノベーションで生まれ変わったリビングがポイント!
都心のローカルラインでシェア利用も相談可能な1LDKをご紹介します。
物件は東急池上線の石川台駅・洗足池駅から5分以内の距離。
池上線は五反田~蒲田駅間を行き来する、3両編成からなるローカル路線です。
アクセス面で懸念がある方も心配ご無用!渋谷・新宿方面へは五反田乗り換えで30分以内。
空路利用が多い方にも蒲田から羽田空港行きのシャトルバスもあり、40〜50分と実は便利な立地です。
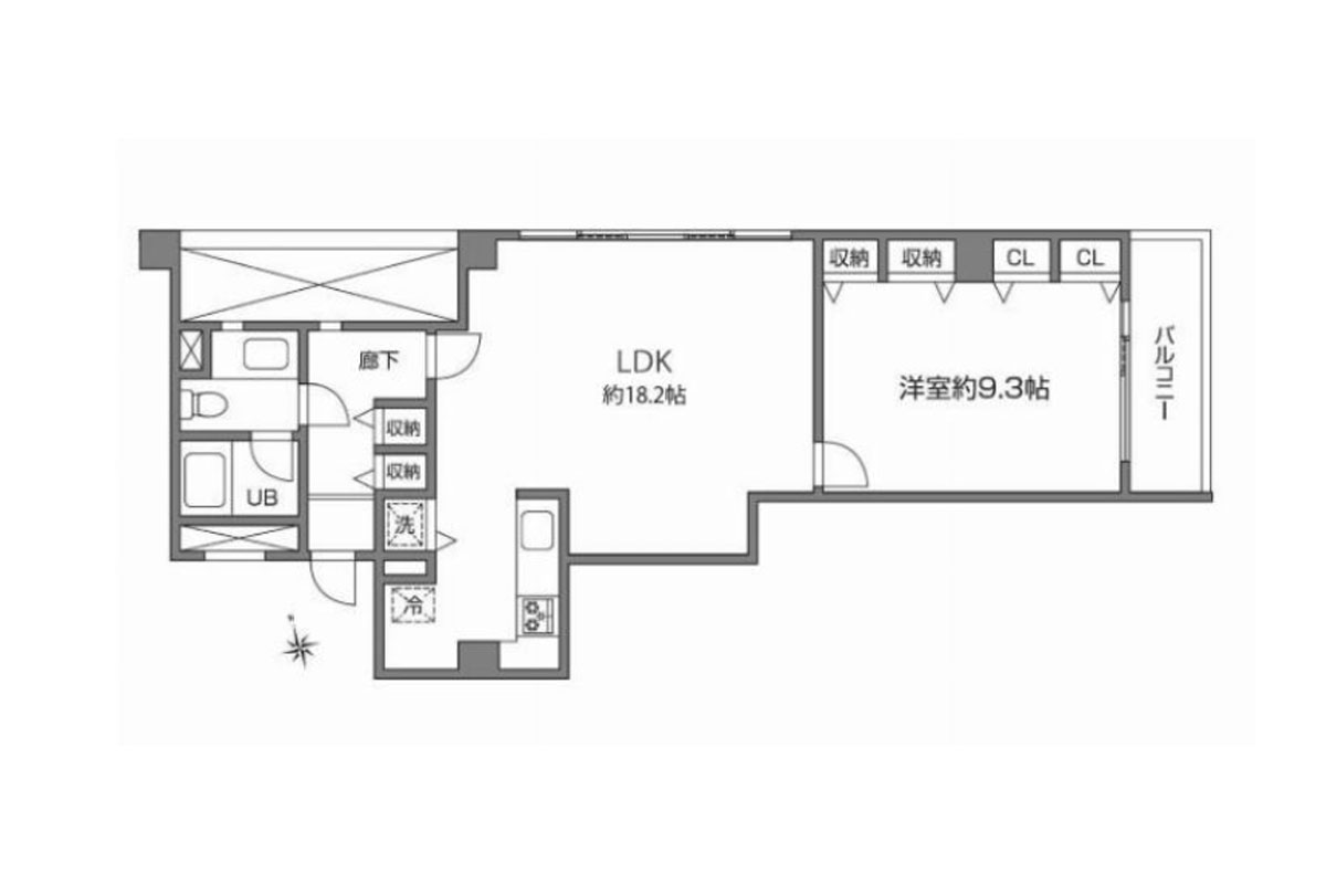
お部屋は2階、62㎡の1LDK。
広々とした18.2帖のLDKはカウンターキッチンで開放的!
新たにリノベーションが施されたリビングはスタイリッシュなグレートーン。
アイアンやレザーソファなどモダンなインテリアがよく映えそうです。
サイドの窓は北向きのため、陽当たりのよいリビングをお求めの方には少し物足りないかも…
個人的にはずらりと並ぶ窓のおかげで日中は室内に自然光が届き、閉塞感はあまりないように感じました。
9.3帖の洋室はリビングとは打って変わってナチュラルムード!
壁一面の収納はクローゼットと可動棚に分かれているので、ワードローブをすっきり納められそう。
バルコニーは東向きで、朝陽を感じながら目覚めることができそう、お洗濯は午前中が狙い目です!
車道沿いの立地のため、走行音等の許容程度はご内見時にご確認ください。
短い距離に駅がひしめき合っているのも池上線の特徴!
有名なのは戸越銀座商店街ですが、各駅前にも特色豊かな商店街があり、活気ある生活圏が広がっています。
最寄りの石川台駅前には9-23時営業のピーコックがあり、日常的なお買いものは充分に事足りるはず。
商店街も生鮮小売店や飲食店、雑貨商店やお花屋さん、整体に美容院と充実したラインナップです!
ふたり暮らしでもゆったりと、異なる表情の2室を楽しむリノベルーム。
ご条件が合う方はぜひご内見ください!
──────────────────────────
まずは、ガレージ賃貸(青山物産)と、ゆるくつながりませんか?
是非フォローしてみてください!
──────────────────────────


































































