申込あり、内見・申込はご相談ください
間取り図だけではわからない魅力のある、少し変わった1DKのお部屋。
世田谷区三宿アドレス、悠々自適な暮らしが叶いそうな立地で土間のある暮らしはいかがでしょう。
最寄り駅の池ノ上駅からは徒歩11分、三軒茶屋駅からは徒歩17分ほど。
駅からの距離はあるものの、この辺りは隠れ家的なグルメやインテリアショップが多く人気の高い住宅地です。
グルメの充実度もさることながら、物件から徒歩10分圏内にスーパーが複数あり自炊派さんにも嬉しい立地!
物件から徒歩2分の場所には渋谷行きのバス停もあって、このエリアに住む方にはとても有用な交通手段◎
渋谷駅まで平常時は20分弱で着き、平日朝7-9時台は約5分間隔で頻繁に走っています。
また、自転車があれば下北沢や世田谷公園、中目黒へと多方面へアクセスしやすい距離。
春には目黒川へ出向いて本格的なお花見をしたり、物件の近くを流れる北沢川緑道で気軽に四季を楽しむこともできそうです。
ご紹介するマンションは淡島通りから裏道を入ったところにある、小綺麗なレジデンス。
ガレージ賃貸でも何部屋かご紹介したことのあるマンションです。
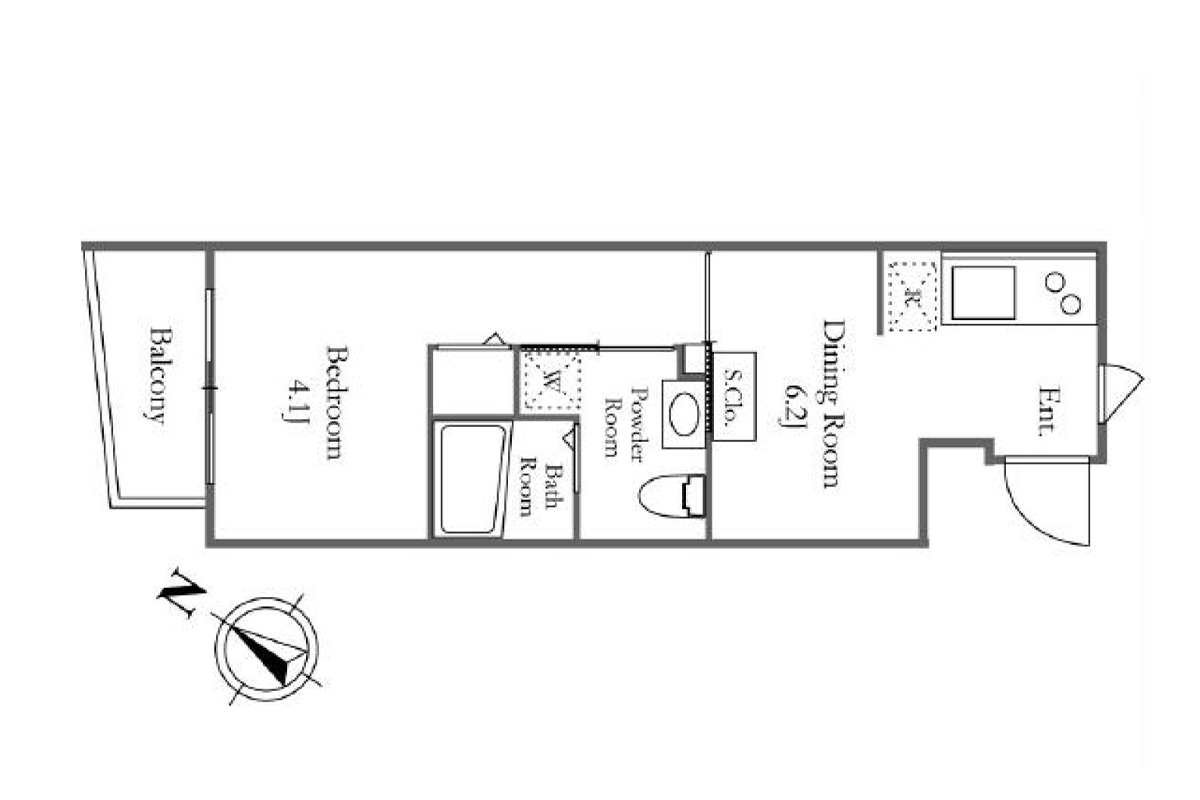
募集中のお部屋は3階の角部屋、約25㎡の1DK。
お部屋に入るとそこはタイル張りの土間スペース!
入ってすぐにキッチンがあるので必然的にここがダイニングスペースになるようです。
奥の洋室は約4.1帖とコンパクトで、寝具と小さなサイドテーブルならセットできるほどの空間。
収納は廊下部分のクローゼットへ。ミニマルな生活を送る方向けのサイズ感です。
室内のフローリングは家具のテイストを選ばず合わせやすい、淡い色調でまとめられています◎
住む人を選ぶ間取りではあるものの、ピタッとハマれば意外と快適かも?
個性のある暮らしを送りたい方はぜひお問い合わせください。
※ペット相談可
※平置駐車場:44,000円/月(税込)・小型車のみ
→2025年10月現在各区画空き有り
★メゾネット1LDKのお部屋も募集中!
三宿で悠々 メゾネットライフ|ペット・子ども相談
──────────────────────────
まずは、ガレージ賃貸(青山物産)と、ゆるくつながりませんか?
是非フォローしてみてください!
──────────────────────────
























































