ワイドな窓とルーフバルコニー!
北西~南東の光が射しこみ、見晴らし良いルーフバルコニーからは朝日も拝めそうでしょうか?
物件は大井町線「旗の台駅」と池上線「長原駅」の中間地点。
どちらの駅からも5~6分の距離です。
正面から見ると要塞のような外観が特徴的なマンションで、窓はすべて側面についています。
ゆったりとしたエントランスにベンチのように腰かけられそうなデザインで、なんだか吸い込まれそうな形をしています。
またマンションはほぼ環七通りに面した位置でしたが、窓は逆方向で、4階の高さということもあり、思っていたよりは車の走行音は気になりませんでした。
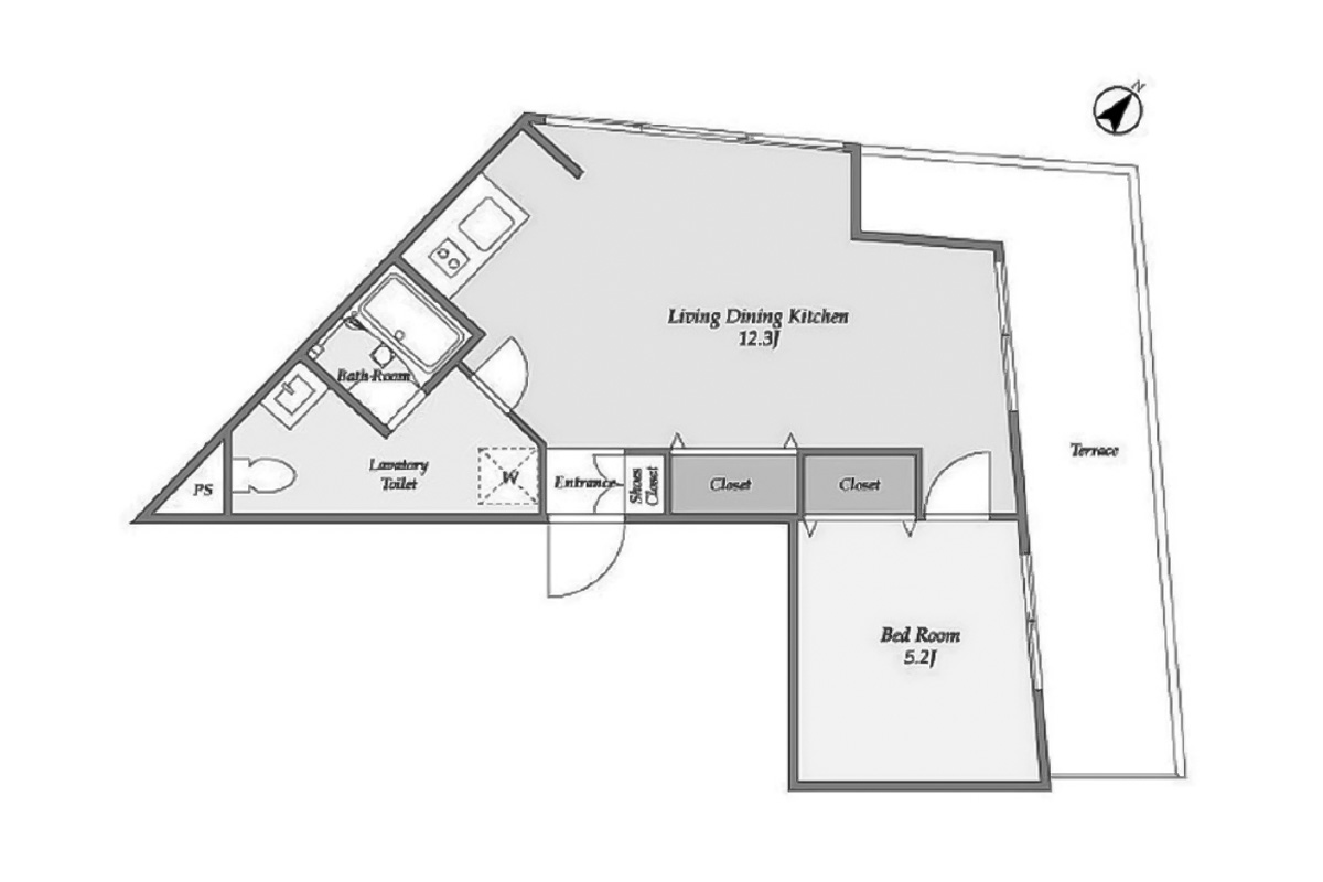
募集のお部屋は4階、約40㎡の1LDK。
水回りや玄関がコンパクトな分、お部屋に面積を使っている印象です。
またワイドな窓からたっぷりと光を取り込んでおり、面積以上の広さを感じられます。
12.4帖のLDKは凹凸あり、家具配置が悩ましいでしょうか?
窓に沿ってダイニングテーブルを置いて、ソファは部屋の中央に配置、もしくは窓際にソファを置いて、ダイニングテーブルが中央でも良さそう。
お手持ちの家具を工夫しながら配置するもよし、ここに合わせて新調するのもアリですね。
そしてワイドなルーフバルコニーはLDKからも洋室からも出入り可能です。
北西~南東向きなので直射日光は望めずとも、眼前に青い空が広がり、気持ちの良い空間。
珈琲や紅茶を片手に一息つけるセカンドリビングのような空間になってくれることでしょう。
最寄り駅の1つ、旗の台駅前には東口・南口にそれぞれ商店街があり、また旗の台~荏原町の駅間にも商店街が続き、荏原町駅からもさらに緑道に沿って商店街が続きます。
長く長く続く商店街には、様々なジャンルの飲食店、青果・鮮魚・精肉・おはぎが有名な精米店など魅力的な個人商店が軒を連ねています。個人商店のみならずスーパーも豊富。旗の台駅前には東急ストア・オオゼキ、長原駅前には道の駅のような地産マルシェもあります。さらに中原街道沿いには大型スーパーのオリンピックもあり、お買い物の選択肢がたくさん…!
駅間の距離が短く、少し歩けば別の街へ移ることができ、商店街を歩きながらどんどん歩いていろんな店を開拓したくなるエリアです。
ワイドな眺望良いバルコニーのある物件をお探しの方、商店街ラバーな方におすすめの物件です。
※インターネット無料
※不可:ペット/事務所/SOHO/楽器
──────────────────────────
まずは、ガレージ賃貸(青山物産)と、ゆるくつながりませんか?
是非フォローしてみてください!
──────────────────────────


























































