住環境に定評のある用賀駅が最寄り、眺望良いデザイナーズ物件のご紹介
物件は世田谷区瀬田。用賀駅から歩いて12分、環八通り沿いのデザイナーズマンションです。
用賀駅は住環境に定評あるエリアで、1人暮らしからファミリーまでご要望の多いエリアの1つ。
駅周辺にお手頃価格帯のスーパーが3店舗、商店街も賑わいがあり、飲食店も豊富。毎年駅前で夏祭りも行われています。
また駅から13分、物件からは18分(自転車6分)の距離には、砧公園・世田谷美術館。
砧公園はディズニーランドと同じ広さなんだとか。木々が豊富で、森の中を歩いているようなゾーンもあるので、週末や早朝の散歩にいかがでしょうか。
用賀駅は各駅停車の駅ですが、渋谷まではおよそ15分。また東名入口もすぐ近くなので車移動の多い方にもおすすめです。(マンションに駐車場はないため、近隣でお探しいただく必要があります)
駅前・都心アクセスといった生活利便性を保ちつつ、自然との距離が近いことが魅力です◎
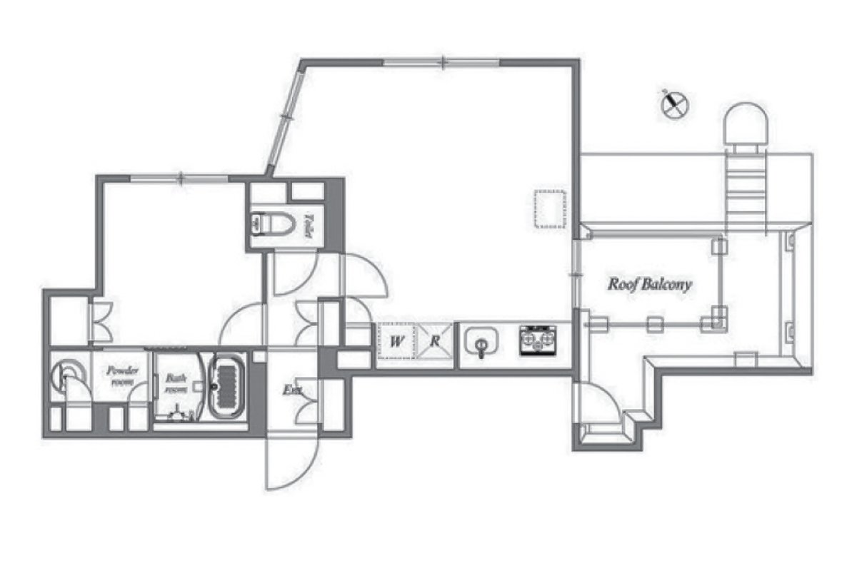
お部屋は5階、約43.55㎡の1LDK+ルーフバルコニー!
先述したとおりマンションは環八通り沿いなのですが、窓・バルコニーは道路とは反対側ということもあって想像よりも静か。
曜日や時間によって交通量は変わり、音の感じ方には個人差がありますが、大通りは音が気になるから避けている…という方にも一度体感していただきたいです。
LDKは広さが10~12帖ほどでしょうか。窓が北西・北・南東向きの3面採光で、ちょうどお昼前に南東向きから陽が差しこんでいました。
陽が入る時間帯は限られますが、窓が多い分、北向きでもたくさん光を取り込んでおり、ダウンライトだけでも十分な明るさがあります。
キッチンは3口IH、IHなのにグリル付きです。
冷蔵庫と洗濯機は扉が共通なので、どちらかを隠すとどちからが見えるという仕様です。
洋室は約4~5帖ほど。収納はややコンパクトなので、ベッド下収納や室内にハンガーラックを置くなど工夫が必要です。
玄関周り・洗面所は打って変わって収納豊富!
玄関には2箇所収納があり、靴以外のストック用品の収納・趣味の道具の収納などにおすすめです。
洗面所にも2箇所の収納。鏡の横と浴室隣にあり、化粧品、タオル、着替えなどの収納に役立ちます。
築浅で設備はとてもきれいな状態です◎
※敷金・礼金ゼロ!(適用条件は要確認)
※フリーレント0.5ヶ月付き!
──────────────────────────
まずは、ガレージ賃貸(青山物産)と、ゆるくつながりませんか?
是非フォローしてみてください!
──────────────────────────








































































