パークサイドで窓辺に四季を感じる暮らしはいかがでしょう。
最寄り駅の東横線「学芸大学駅」から徒歩9分。
商店街や往来の多い駅前を抜けると、先ほどまでの賑やかさから徐々に閑静な住宅街へと切り替わっていきます。
この辺りは緑が多いなと眺めながら歩いていると辿り着くのが、碑文谷公園。
ボート乗り場や野球場、テニスコートまである地域の憩いの場です。
そんな碑文谷公園に面した角地に建つのが今回の物件!
2026年1月竣工の新築物件で、真新しい佇まいでカーブがかったフォルムが特徴的!
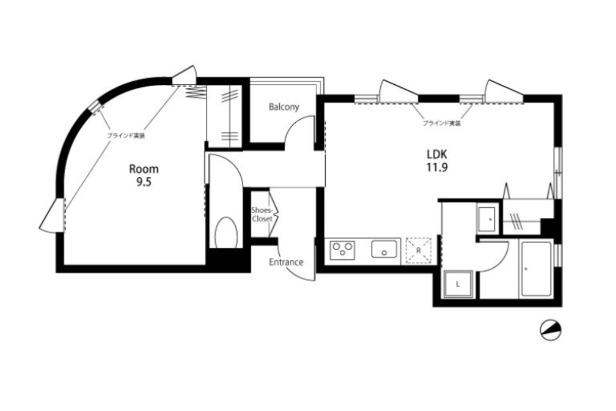
お部屋は2階、約51㎡の1LDK。
1フロア1住戸のみでプライベートが確保されているのもうれしいですね。
お部屋の窓からは公園の緑を借景として、四季の移り変わりを愉しむことができます。
春には室内から満開の桜を眺められる特等席になるのだそう。
洋室は建物の外観そのままのラウンド形状となっていて、やわらかな印象を与えてくれます。
縦長の窓から差し込む光も、なんだかドラマチックです!!
バルコニーはちょっぴりコンパクトですが、パークサイドならではの緑豊かな眺望!
目の前にはテニスコートがあり、利用時間帯は少々賑わいもあるかもしれません。
お洗濯の際はスタンドタイプの物干しなどを利用するのがよさそうです。
都心ならではの利便性を満喫しつつ、公園至近の豊かな緑も愉しむ暮らし。
いいとこどりのロケーションで穏やかな時間が流れていきそうです。
──────────────────────────
まずは、ガレージ賃貸(青山物産)と、ゆるくつながりませんか?
是非フォローしてみてください!
──────────────────────────


























































